Maison neuve à
Fourges
(27630) Référence :
GBLAS09_02-2_2
Prix du projet : Maison avec Terrain
prix 249 700 €
- 4 pièces
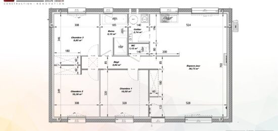
- 3 chambres
- Surface maison 83 m2
Maison T4 (83 m²) en vente à Fourges
IDÉALEMENT SITUÉE - MAISON 4 PIÈCES NEUVE
Eligible au prêt à taux zéro 2026
MAISON OSSATURE BOIS (Double isolation)
À vendre : localisée à deux pas de Mantes-la-Jolie, votre agence Les Maisons Extraco Les Andelys est ravie de vous proposer cette maison de 4 pièces de plain-pied de 83 m² et de 950 m² de terrain idéalement située dans Fourges (27630). Son intérieur dispose de trois chambres, d'une cuisine et d'une salle de bains.
La maison est neuve.
Ce bien se situe dans un quartier recherché. L'École Primaire Paul-Armand Languet se trouve à moins de 10 minutes à pied. Il y a une boulangerie à proximité.
Il est à vendre pour la somme de 249 700 €.
N'hésitez pas à prendre contact avec Gilles BOREAU (02-32-51-77-46) pour plus d'informations sur la maison ou sur les démarches à suivre.
Mentions légales
Terrain proposé par un partenaire foncier selon disponibilités et autorisation de publicité au prix de 88 000 €. Hors droit d'enregistrement et frais de notaire. Terrain + Maison proposés au prix de 249 700 € (Hors branchements et raccordements, papiers peints, peintures, revêtement de sol dans les chambres. Tarif modifiable sans préavis). Etiquette énergie : A. Différents modèles disponibles pour ce terrain. Assurances et garanties du constructeur (RC professionnelle, décennale, dommage ouvrage, garantie de remboursement de l'acompte, livraison à prix et délai convenu) : https://www.lesmaisonsextraco.fr/informations-legales/.Agence Maisons Extraco de Les Andelys (27700)
- Téléphone :
- 02 32 51 77 46
- Adressse :
- 51 Avenue de la République
27700 Les Andelys, France
