Maison neuve à
Franleu
(80210) Référence :
DD_eu05_14-0_1
Prix du projet : Maison avec Terrain
prix 187 200 €
- 5 pièces
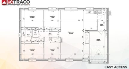
- 4 chambres
- Surface maison 92 m2
Franleu : maison de 5 pièces (92 m²) en vente
MAISON 5 PIÈCES NEUVE
À vendre : à 19 km de la Manche, à Franleu (80210), nous sommes ravis de vous proposer cette maison de 5 pièces de plain-pied de 92 m² et de 1 200 m² de terrain.
Conçue de plain-pied, elle comporte quatre chambres, une cuisine et une salle de bains. La maison est neuve.
Une école élémentaire est implantée dans le quartier. Les autoroutes A28 et A16 sont accessibles à moins de 13 km. Il y a un commerce à proximité du bien.
Elle est proposée à l'achat pour 187 200 €.
Contactez Delphine DERULLES (06-67-13-79-40) pour toute question sur cette maison ou sur les modalités de vente. Donnez vie à vos projets immobiliers avec Les Maisons Extraco Eu.
Mentions légales
Terrain proposé par un partenaire foncier selon disponibilités et autorisation de publicité au prix de 38 000 €. Hors droit d'enregistrement et frais de notaire. Terrain + Maison proposés au prix de 187 200 € (Hors branchements et raccordements, papiers peints, peintures, revêtement de sol dans les chambres. Tarif modifiable sans préavis). Etiquette énergie : A. Différents modèles disponibles pour ce terrain. Assurances et garanties du constructeur (RC professionnelle, décennale, dommage ouvrage, garantie de remboursement de l'acompte, livraison à prix et délai convenu) : https://www.lesmaisonsextraco.fr/informations-legales/.Agence Maisons Extraco de Eu (76260)
- Téléphone :
- 02 35 82 68 79
- Adressse :
- 4 rue Abbaye
76260 Eu, France
