Maison neuve à
Fresne-le-Plan
(76520) Référence :
AR2310372_7
Prix du projet : Maison avec Terrain
prix 225 000 €
- 5 pièces
- 4 chambres
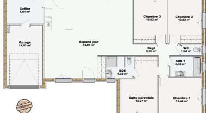
- Surface maison 113 m2
Maison idéalement située à FRESNE LE PLAN sur un terrain de 700 m².
À proximité, dans le bourg : école, boulangerie, parc pour enfants, bus vert.
Cette maison contemporaine bénéficie d'un agencement agréable : - Salon/séjour avec cuisine ouverte de 45 m², avec une grande baie coulissante de 2,20 m en alu, - cellier, - 3 chambres avec placards, - suite parentale avec dressing et douche à l'italienne, - salle de bains avec baignoire et douche, - garage de 15 m².
Isolation renforcée avec système de chauffage très économique par pompe à chaleur. Maison certifiée RE20. DPE : A / GSE : B.
Venez nous rencontrer et visiter notre showroom : Maisons Extraco - 3 Rue de la Scierie - 76530 LES ESSARTS
Personnalisée sur les secteurs de votre choix. Étude gratuite auprès de votre conseiller : Alexis RINGOT (O6.02.72.20.36 / a.ringot at extraco.fr).
(Premier échange par SMS possible)
Mentions légales
Terrain proposé par un partenaire foncier selon disponibilités et autorisation de publicité au prix de 85 000 €. Hors droit d'enregistrement et frais de notaire. Terrain + Maison proposés au prix de 140 000 € (Hors branchements et raccordements, papiers peints, peintures, revêtement de sol dans les chambres. Tarif modifiable sans préavis). Etiquette énergie : A. Différents modèles disponibles pour ce terrain. Assurances et garanties du constructeur (RC professionnelle, décennale, dommage ouvrage, garantie de remboursement de l'acompte, livraison à prix et délai convenu) : https://www.lesmaisonsextraco.fr/informations-legales/.Agence Maisons Extraco de Grand-Couronne (76530)
- Téléphone :
- 02 35 67 20 76
- Adressse :
- 3 rue de la Scierie
76530 Grand-Couronne, France
