Maison neuve à
Fréville
(76190) Référence :
SL-yvetotcroixmare05_2
Prix du projet : Maison avec Terrain
prix 272 300 €
- 4 pièces
- 3 chambres
- Surface maison 94 m2
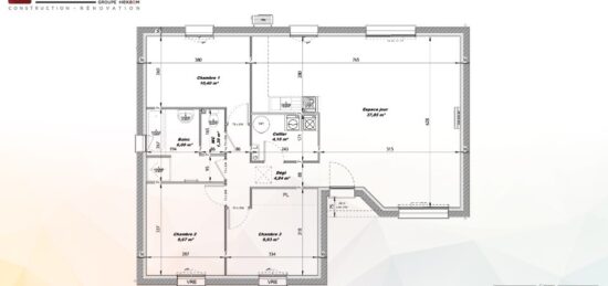
Maison T4 (94 m²) à construire à Fréville
CENTRE-VILLE - MAISON 4 PIÈCES NEUVE
Située à 37 km de la Manche et à deux pas de Rouen, dans le centre-ville de Fréville (76190), Extraco construction rénovation Yvetot vous propose cette maison de 4 pièces de plain-pied de 94 m² et de 639 m² de terrain. Elle est composée de trois chambres, d'une cuisine et de deux salles de bains.
La maison est neuve.
Il y a l'École Primaire de Betteville et l'École Primaire de Fréville dans la commune. Niveau transports, on trouve quatre gares à moins de 10 minutes en voiture. Les autoroutes A150 et A29 sont accessibles à moins de 9 km. Il y a un tennis, une bibliothèque, deux commerces et un bureau de poste à proximité.
Son prix de vente est de 272 300 €.
Contactez Sébastien LENFANT (tél : 06-66-42-53-33) pour plus de renseignements sur la maison ou sur les modalités de vente. Extraco construction rénovation Yvetot vous accompagne dans tous vos projets immobiliers et à toutes les étapes de votre projet.
Mentions légales
Terrain proposé par un partenaire foncier selon disponibilités et autorisation de publicité au prix de 69 000 €. Hors droit d'enregistrement et frais de notaire. Terrain + Maison proposés au prix de 272 300 € (Hors branchements et raccordements, papiers peints, peintures, revêtement de sol dans les chambres. Tarif modifiable sans préavis). Etiquette énergie : A. Différents modèles disponibles pour ce terrain. Assurances et garanties du constructeur (RC professionnelle, décennale, dommage ouvrage, garantie de remboursement de l'acompte, livraison à prix et délai convenu) : https://www.lesmaisonsextraco.fr/informations-legales/.Agence Maisons Extraco de Yvetot (76190)
- Téléphone :
- 02 35 56 53 46
- Adressse :
- Avenue du Général Leclerc
76190 Yvetot, France
