Maison neuve à
Gaillon
(27600) Référence :
GBLAS06_03-2_1
Prix du projet : Maison avec Terrain
prix 209 600 €
- 3 pièces
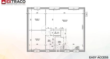
- 2 chambres
- Surface maison 65 m2
Maison de 3 pièces (65 m²) à vendre à Gaillon
CENTRE-VILLE - MAISON 3 PIÈCES NEUVE
À quelques kilomètres d'Évreux, en vente à Gaillon (27600), en centre-ville, venez découvrir cette maison de 3 pièces de plain-pied de 65 m². Elle est composée de deux chambres, d'une cuisine et d'une salle de bains.
Le terrain de la maison est de 594 m².
Cette maison est neuve.
On trouve cinq établissements scolaires à moins de 10 minutes à pied, tout comme deux crèches. Niveau transports en commun, il y a la gare Gaillon-Aubevoye à moins de 10 minutes en voiture. Il y a un accès à l'autoroute A13 à 4 km. On trouve un tennis, un supermarché, des commerces, des boulangeries, un bureau de poste et des boucheries-charcuteries à proximité. Le marché Rue de Gaulle a lieu chaque mardi matin.
Elle est à vendre pour la somme de 209 600 €.
N'hésitez pas à prendre contact avec Gilles BOREAU (tél : 02-32-51-77-46) pour toute question sur la propriété. Les Maisons Extraco Les Andelys est là pour vous accompagner dans toutes vos démarches.
Mentions légales
Terrain proposé par un partenaire foncier selon disponibilités et autorisation de publicité au prix de 88 000 €. Hors droit d'enregistrement et frais de notaire. Terrain + Maison proposés au prix de 209 600 € (Hors branchements et raccordements, papiers peints, peintures, revêtement de sol dans les chambres. Tarif modifiable sans préavis). Etiquette énergie : A. Différents modèles disponibles pour ce terrain. Assurances et garanties du constructeur (RC professionnelle, décennale, dommage ouvrage, garantie de remboursement de l'acompte, livraison à prix et délai convenu) : https://www.lesmaisonsextraco.fr/informations-legales/.Agence Maisons Extraco de Les Andelys (27700)
- Téléphone :
- 02 32 51 77 46
- Adressse :
- 51 Avenue de la République
27700 Les Andelys, France
