Maison neuve à
Gaillon
(27600) Référence :
CG2436871_1
Prix du projet : Maison avec Terrain
prix 229 900 €
- 4 pièces
- 2 chambres
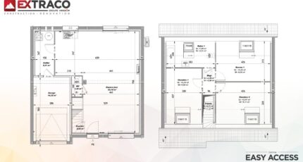
- Surface maison 81 m2
VENTE : maison de 4 pièces (81 m²) à Gaillon
IDÉALEMENT SITUÉE - MAISON 4 PIÈCES NEUVE
En vente à deux pas d'Évreux, idéalement située dans Gaillon (27600), nous sommes ravis de vous présenter cette maison de 4 pièces de 81 m² et de 660 m² de terrain. Elle inclut deux chambres, une cuisine et une salle de bains.
C'est une maison de 2 niveaux. Elle est neuve.
Cette maison se situe dans un quartier recherché. Cinq établissements scolaires sont implantés à moins de 10 minutes à pied, tout comme deux crèches. Niveau transports en commun, on trouve la gare Gaillon-Aubevoye à moins de 10 minutes en voiture. Il y a un tennis, un supermarché, des commerces, des boulangeries, un bureau de poste et des boucheries-charcuteries dans les environs. Ne manquez pas le marché Rue de Gaulle tous les mardis matin.
Elle est à vendre pour la somme de 229 900 €.
N'hésitez pas à prendre contact avec GOITA Carole pour plus de renseignements sur la maison ou sur les modalités de vente.
Mentions légales
Terrain proposé par un partenaire foncier selon disponibilités et autorisation de publicité au prix de 49 000 €. Hors droit d'enregistrement et frais de notaire. Terrain + Maison proposés au prix de 229 900 € (Hors branchements et raccordements, papiers peints, peintures, revêtement de sol dans les chambres. Tarif modifiable sans préavis). Etiquette énergie : A. Différents modèles disponibles pour ce terrain. Assurances et garanties du constructeur (RC professionnelle, décennale, dommage ouvrage, garantie de remboursement de l'acompte, livraison à prix et délai convenu) : https://www.lesmaisonsextraco.fr/informations-legales/.Agence Maisons Extraco de Les Andelys (27700)
- Téléphone :
- 02 32 51 77 46
- Adressse :
- 51 Avenue de la République
27700 Les Andelys, France
