Maison neuve à
Ganzeville
(76400) Référence :
BP-HAVRE-sem52-3_2
Prix du projet : Maison avec Terrain
prix 207 000 €
- 4 pièces
- 3 chambres
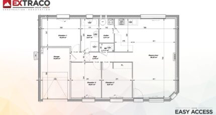
- Surface maison 82 m2
Maison T4 (82 m²) à vendre à Ganzeville
MAISON 4 PIÈCES NEUVE
En vente : localisée à 6 km de la Manche, notre agence Les Maisons Extraco Le Havre est ravie de vous proposer cette maison de 4 pièces de plain-pied de 82 m² et de 791 m² de terrain à Ganzeville (76400). Son intérieur est composé de trois chambres, d'une cuisine et d'une salle de bains.
Cette maison est neuve.
Niveau transports en commun, il y a la gare Fécamp à moins de 10 minutes en voiture. Il y a un accès à l'autoroute A29 à 17 km. On trouve un tennis dans les environs.
Elle est à vendre pour la somme de 207 000 €.
N'hésitez pas à prendre contact avec Barbara PELLETER (06-25-73-10-44) pour toute information sur la maison ou sur les démarches à suivre. Les Maisons Extraco Le Havre est là pour vous accompagner dans tous vos projets immobiliers.
Mentions légales
Terrain proposé par un partenaire foncier selon disponibilités et autorisation de publicité au prix de 59 000 €. Hors droit d'enregistrement et frais de notaire. Terrain + Maison proposés au prix de 148 000 € (Hors branchements et raccordements, papiers peints, peintures, revêtement de sol dans les chambres. Tarif modifiable sans préavis). Etiquette énergie : A. Différents modèles disponibles pour ce terrain. Assurances et garanties du constructeur (RC professionnelle, décennale, dommage ouvrage, garantie de remboursement de l'acompte, livraison à prix et délai convenu) : https://www.lesmaisonsextraco.fr/informations-legales/.Agence Maisons Extraco de Le Havre (76600)
- Téléphone :
- 02 35 21 53 46
- Adressse :
- 110 rue de Paris
76600 Le Havre, France
