Maison neuve à
Gerponville
(76540) Référence :
SL-YvetotGerponvil48_2
Prix du projet : Maison avec Terrain
prix 244 320 €
- 4 pièces
- 3 chambres
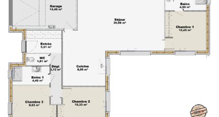
- Surface maison 94 m2
Gerponville : maison de 4 pièces (94 m²) à construire.
EMPLACEMENT PRIVILÉGIÉ - MAISON 4 PIÈCES NEUVE
À 10 km de la Manche, ayez le coup de coeur pour en vente, bénéficiant d'un emplacement d'exception dans Gerponville (76540), cette maison de 4 pièces de plain-pied de 94 m² et de 641 m² de terrain. Son intérieur compte trois chambres, une cuisine et deux salles de bains.
Cette maison est neuve.
La maison est située dans un quartier convoité. On y trouve une école élémentaire. L'autoroute A29 est accessible à 15 km. Il y a un tennis et une boulangerie dans les environs.
Elle est proposée à l'achat pour 244 320 €.
Contactez Sébastien LENFANT (06-66-42-53-33) pour tout renseignement sur le bien, sur les modalités de vente ou sur les démarches à suivre. Extraco construction rénovation Yvetot vous accompagne dans tous vos projets immobiliers et dans toutes vos démarches.
Mentions légales
Terrain proposé par un partenaire foncier selon disponibilités et autorisation de publicité au prix de 43 000 €. Hors droit d'enregistrement et frais de notaire. Maison proposée, avec un contrat de construction de maison individuelle, dans le cadre de la loi du 19/12/1990, au prix de 201 320 € (Hors branchements et raccordements, papiers peints, peintures, revêtement de sol dans les chambres, qui sont chiffrés dans les travaux qui restent à charge du client. Tarif modifiable sans préavis). Étiquette énergie : A. Différents modèles disponibles pour ce terrain. Assurances et garanties du constructeur comprises (RC professionnelle, décennale, dommage ouvrage).Agence Maisons Extraco de Yvetot (76190)
- Téléphone :
- 02 35 56 53 46
- Adressse :
- Avenue du Général Leclerc
76190 Yvetot, France
