Maison neuve à
Gisors
(27140) Référence :
CG2436877_2
Prix du projet : Maison avec Terrain
prix 226 600 €
- 4 pièces
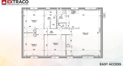
- 3 chambres
- Surface maison 80 m2
Gisors : maison T4 (80 m²) en vente
IDÉALEMENT SITUÉE - MAISON 4 PIÈCES NEUVE
En vente : proche du Transilien J (1 h de Paris), nous vous présentons cette maison de 4 pièces de plain-pied de 80 m², idéalement située dans Gisors (27140).
Conçue de plain-pied, elle dispose de trois chambres, d'une cuisine et d'une salle de bains. La maison est neuve.
Le terrain du bien est de 530 m².
La maison est située dans un quartier attractif. On trouve tous les types d'établissements scolaires à moins de 10 minutes à pied. Côté transports, il y a la gare Gisors dans les alentours. Il y a un tennis, une bibliothèque, des commerces, des boulangeries, trois supermarchés, un bureau de poste et des boucheries-charcuteries à quelques minutes à peine. 2 marchés animent les environs.
Son prix de vente est de 226 600 €.
Contactez Carole GOITA pour plus d'informations sur la maison ou sur les modalités de vente. Extraco Construction Rénovation Les Andelys est là pour vous accompagner à toutes les étapes de l'achat.
Mentions légales
Terrain proposé par un partenaire foncier selon disponibilités et autorisation de publicité au prix de 76 000 €. Hors droit d'enregistrement et frais de notaire. Terrain + Maison proposés au prix de 226 600 € (Hors branchements et raccordements, papiers peints, peintures, revêtement de sol dans les chambres. Tarif modifiable sans préavis). Etiquette énergie : A. Différents modèles disponibles pour ce terrain. Assurances et garanties du constructeur (RC professionnelle, décennale, dommage ouvrage, garantie de remboursement de l'acompte, livraison à prix et délai convenu) : https://www.lesmaisonsextraco.fr/informations-legales/.Agence Maisons Extraco de Les Andelys (27700)
- Téléphone :
- 02 32 51 77 46
- Adressse :
- 51 Avenue de la République
27700 Les Andelys, France
