Maison neuve à
Gournay-en-Bray
(76220) Référence :
SE2418082_2
Prix du projet : Maison avec Terrain
prix 209 500 €
- 4 pièces
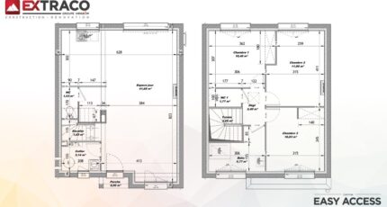
- 3 chambres
- Surface maison 88 m2
Maison T4 (88 m²) en vente à Gournay-en-Bray
IDÉALEMENT SITUÉE - MAISON 4 PIÈCES NEUVE
En vente à deux pas de Beauvais, nous sommes ravis de vous présenter cette maison de 4 pièces de 88 m² et de 805 m² de terrain idéalement située dans Gournay-en-Bray (76220). Elle offre trois chambres, une cuisine et une salle de bains.
C'est une maison de 2 niveaux. Elle est neuve.
Cette maison se situe dans un secteur convoité. On trouve plusieurs écoles (maternelle, élémentaire, primaire et collège) à moins de 10 minutes à pied. Côté transports, il y a la gare Gournay-Ferrières à moins de 10 minutes en voiture. On trouve une bibliothèque, un tennis, un bassin de natation, des commerces, des boulangeries, quatre supermarchés, un bureau de poste et une épicerie à quelques minutes du bien. Enfin, le marché Place Nationale anime le quartier.
Elle est proposée à l'achat pour 209 500 €.
Contactez notre agence (ELHLOU Slimane : 06-17-96-02-17) pour obtenir de plus amples informations sur la maison, sur les démarches à suivre ou sur les modalités de vente.
Mentions légales
Terrain proposé par un partenaire foncier selon disponibilités et autorisation de publicité au prix de 59 000 €. Hors droit d'enregistrement et frais de notaire. Terrain + Maison proposés au prix de 150 500 € (Hors branchements et raccordements, papiers peints, peintures, revêtement de sol dans les chambres. Tarif modifiable sans préavis). Etiquette énergie : A. Différents modèles disponibles pour ce terrain. Assurances et garanties du constructeur (RC professionnelle, décennale, dommage ouvrage, garantie de remboursement de l'acompte, livraison à prix et délai convenu) : https://www.lesmaisonsextraco.fr/informations-legales/.Agence Maisons Extraco de Dieppe (76200)
- Téléphone :
- 02 35 06 07 50
- Adressse :
- 78 rue de la Barre
76200 Dieppe, France
