Maison neuve à
Grangues
(14160) Référence :
AC2350972S48_1
Prix du projet : Maison avec Terrain
prix 355 400 €
- 4 pièces
- 3 chambres
- Surface maison 94 m2
OSSATURE BOIS
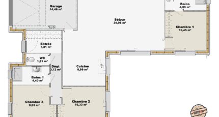
VENTE : maison F4 (94 m²) à Grangues
IDÉALEMENT SITUÉE - MAISON 4 PIÈCES NEUVE
En vente : venez découvrir, idéalement située dans Grangues (14160), cette maison de 4 pièces de plain-pied de 94 m².
Conçue de plain-pied, elle est composée de trois chambres, d'une cuisine et de deux salles de bains. Cette maison est neuve.
Le terrain de la propriété est de 743 m².
La maison se situe dans un quartier attractif. Des écoles de tous types (de la maternelle au lycée) sont implantées à moins de 10 minutes en voiture, tout comme une crèche à moins de 10 minutes à pied. Niveau transports, on trouve cinq gares à moins de 10 minutes en voiture. L'autoroute A13 est accessible à 4 km. Il y a trois bibliothèques, des tennis, deux ports de plaisance, trois bassins de natation, des commerces, des supermarchés, des boulangeries, des supérettes et des épiceries dans les environs. Enfin, 2 marchés animent les environs.
Elle est proposée à l'achat pour 355 400 €.
Contactez notre agence (CUVILLIERS Angélique : 07-63-32-12-06) pour obtenir de plus amples renseignements sur la maison et sur les modalités de vente.
EXTRACO Construction Rénovation Pont-l'Évêque est là pour vous accompagner à toutes les étapes de l'achat.
Mentions légales
Terrain proposé par un partenaire foncier selon disponibilités et autorisation de publicité au prix de 150 400 €. Hors droit d'enregistrement et frais de notaire. Maison proposée, avec un contrat de construction de maison individuelle, dans le cadre de la loi du 19/12/1990, au prix de 205 000 € (Hors branchements et raccordements, papiers peints, peintures, revêtement de sol dans les chambres, qui sont chiffrés dans les travaux qui restent à charge du client. Tarif modifiable sans préavis). Étiquette énergie : A. Différents modèles disponibles pour ce terrain. Assurances et garanties du constructeur comprises (RC professionnelle, décennale, dommage ouvrage).Agence Maisons Extraco de Pont-l'Évêque (14130)
- Téléphone :
- 02 31 64 00 00
- Adressse :
- 20 rue Hamelin
14130 Pont-l'Évêque, France
