Maison neuve à
Grangues
(14160) Référence :
AC2350972S48_4
Prix du projet : Maison avec Terrain
prix 442 500 €
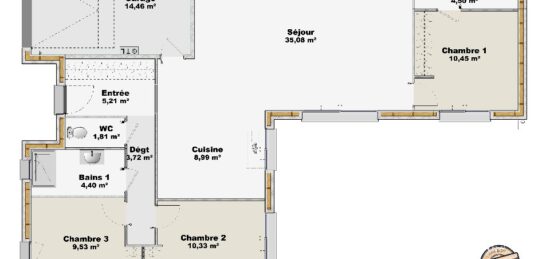
- 4 pièces
- 3 chambres
- Surface maison 137 m2
Grangues : maison de 4 pièces (137 m²) à vendre
IDÉALEMENT SITUÉE - MAISON 4 PIÈCES NEUVE
En vente : votre agence EXTRACO Construction Rénovation Pont-l'Évêque est ravie de vous présenter cette maison de 4 pièces de plain-pied de 137 m², idéalement située dans Grangues (14160). Conçue de plain-pied, elle offre trois chambres, une cuisine et deux salles de bains.
Le terrain de la propriété s'étend sur 743 m².
Cette maison est neuve.
La propriété se trouve dans un secteur prisé. Des établissements scolaires du primaire et du secondaire sont implantés à moins de 10 minutes en voiture, tout comme une crèche à moins de 10 minutes à pied. Côté transports en commun, on trouve cinq gares à moins de 10 minutes en voiture. On trouve un accès à l'autoroute A13 à 4 km. Il y a trois bibliothèques, des tennis, deux ports de plaisance, trois bassins de natation, des commerces, des supermarchés, des boulangeries, des boucheries-charcuteries et des supérettes à proximité du logement. 2 marchés animent le quartier.
Elle est à vendre pour la somme de 442 500 €.
Prenez contact avec notre agence (Angélique CUVILLIERS : 07-63-32-12-06) pour obtenir de plus amples renseignements sur la maison.
Mentions légales
Terrain proposé par un partenaire foncier selon disponibilités et autorisation de publicité au prix de 150 400 €. Hors droit d'enregistrement et frais de notaire. Maison proposée, avec un contrat de construction de maison individuelle, dans le cadre de la loi du 19/12/1990, au prix de 292 100 € (Hors branchements et raccordements, papiers peints, peintures, revêtement de sol dans les chambres, qui sont chiffrés dans les travaux qui restent à charge du client. Tarif modifiable sans préavis). Étiquette énergie : A. Différents modèles disponibles pour ce terrain. Assurances et garanties du constructeur comprises (RC professionnelle, décennale, dommage ouvrage).Agence Maisons Extraco de Pont-l'Évêque (14130)
- Téléphone :
- 02 31 64 00 00
- Adressse :
- 20 rue Hamelin
14130 Pont-l'Évêque, France
