Maison neuve à
Grangues
(14160) Référence :
MP2348891_3
Prix du projet : Maison avec Terrain
prix 381 000 €
- 4 pièces
- 3 chambres
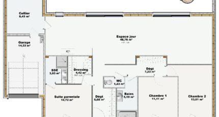
- Surface maison 120 m2
VENTE d'une maison F4 (120 m²) à Grangues
QUARTIER RECHERCHÉ - MAISON 4 PIÈCES NEUVE
En vente : à 5 km de la Manche et à deux pas du Havre, dans un quartier convoité de Grangues (14160), laissez vous charmer par cette maison de 4 pièces de plain-pied de 120 m² et de 743 m² de terrain.
Conçue de plain-pied, elle inclut trois chambres, une cuisine et deux salles de bains. La maison est neuve.
Cette maison se trouve dans un secteur attractif. Des établissements scolaires de tous niveaux sont implantés à moins de 10 minutes en voiture, tout comme une structure d'accueil pour la petite enfance à moins de 10 minutes à pied. Côté transports, il y a cinq gares à moins de 10 minutes en voiture. L'autoroute A13 est accessible à 4 km. On trouve trois bibliothèques, des tennis, deux ports de plaisance, trois bassins de natation, des commerces, des supermarchés, des boulangeries, des poissonneries et des bureaux de poste à proximité. 2 marchés animent les environs.
Elle est proposée à l'achat pour 381 000 €.
Contactez notre agence (PAIN Marion : 06-67-04-73-85) pour plus d'informations sur la maison ou sur les modalités de vente.
Mentions légales
Terrain proposé par un partenaire foncier selon disponibilités et autorisation de publicité au prix de 150 400 €. Hors droit d'enregistrement et frais de notaire. Maison proposée, avec un contrat de construction de maison individuelle, dans le cadre de la loi du 19/12/1990, au prix de 230 600 € (Hors branchements et raccordements, papiers peints, peintures, revêtement de sol dans les chambres, qui sont chiffrés dans les travaux qui restent à charge du client. Tarif modifiable sans préavis). Étiquette énergie : A. Différents modèles disponibles pour ce terrain. Assurances et garanties du constructeur comprises (RC professionnelle, décennale, dommage ouvrage).Agence Maisons Extraco de Pont-l'Évêque (14130)
- Téléphone :
- 02 31 64 00 00
- Adressse :
- 20 rue Hamelin
14130 Pont-l'Évêque, France
