Maison neuve à
Grossœuvre
(27220) Référence :
OS2418152_2
Prix du projet : Maison avec Terrain
prix 158 300 €
- 3 pièces
- 2 chambres
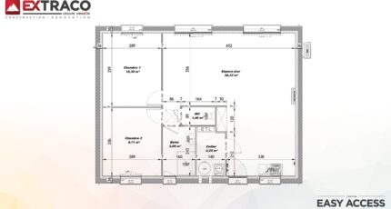
- Surface maison 65 m2
Maison de 3 pièces (65 m²) en vente à Grossoeuvre
IDÉALEMENT SITUÉE - MAISON 3 PIÈCES NEUVE
À vendre : à 9 km d'Évreux, nous vous proposons, idéalement située dans Grossoeuvre (27220), cette maison de 3 pièces de plain-pied de 65 m².
Conçue de plain-pied, elle offre deux chambres, une cuisine et une salle de bains. La maison est neuve.
Le terrain de la propriété s'étend sur 1 001 m².
Cette maison se situe dans un secteur attractif. Une école primaire y est implantée. Niveau transports en commun, il y a la gare Évreux Normandie à moins de 10 minutes en voiture. Les nationales N154 et N13 sont accessibles à moins de 8 km. On trouve un tennis dans les environs.
Elle est proposée à l'achat pour 158 300 €.
Prenez contact avec notre agence (Oumayma SONMEZ : 06-68-92-00-86) pour tout renseignement sur la maison ou sur les modalités de vente. Les Maisons Extraco Gravigny est là pour vous accompagner dans toutes vos démarches.
Mentions légales
Terrain proposé par un partenaire foncier selon disponibilités et autorisation de publicité au prix de 44 900 €. Hors droit d'enregistrement et frais de notaire. Terrain + Maison proposés au prix de 113 400 € (Hors branchements et raccordements, papiers peints, peintures, revêtement de sol dans les chambres. Tarif modifiable sans préavis). Etiquette énergie : A. Différents modèles disponibles pour ce terrain. Assurances et garanties du constructeur (RC professionnelle, décennale, dommage ouvrage, garantie de remboursement de l'acompte, livraison à prix et délai convenu) : https://www.lesmaisonsextraco.fr/informations-legales/.Agence Maisons Extraco de Gravigny (27930)
- Téléphone :
- 02 32 31 20 44
- Adressse :
- 165 Avenue Aristide Briand
27930 Gravigny, France
