Maison neuve à
Grossœuvre
(27220) Référence :
OS2418152_3
Prix du projet : Maison avec Terrain
prix 187 100 €
- 4 pièces
- 3 chambres
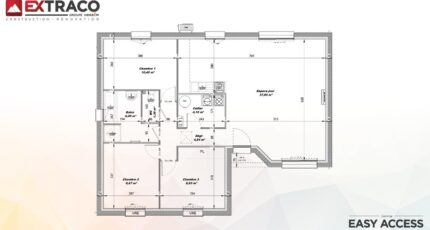
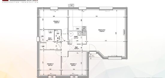
- Surface maison 84 m2
Grossoeuvre : maison de 4 pièces (84 m²) à vendre
IDÉALEMENT SITUÉE - MAISON 4 PIÈCES NEUVE
À vendre à deux pas d'Évreux, découvrez cette maison de 4 pièces de plain-pied de 84 m² et de 1 001 m² de terrain idéalement située dans Grossoeuvre (27220).
Son intérieur compte trois chambres, une cuisine et une salle de bains. La maison est neuve.
Cette maison est située dans un secteur convoité. On y trouve une école primaire. Niveau transports, on trouve la gare Évreux Normandie à moins de 10 minutes en voiture. Les nationales N154 et N13 sont accessibles à moins de 8 km. Il y a un tennis à proximité du bien.
Son prix de vente est de 187 100 €.
N'hésitez pas à prendre contact avec notre agence (SONMEZ Oumayma : 06-68-92-00-86) pour obtenir de plus amples renseignements sur le bien, sur les démarches à suivre ou sur les modalités de vente. Les Maisons Extraco Gravigny vous accompagne à toutes les étapes de l'achat et dans tous vos projets immobiliers.
Mentions légales
Terrain proposé par un partenaire foncier selon disponibilités et autorisation de publicité au prix de 44 900 €. Hors droit d'enregistrement et frais de notaire. Terrain + Maison proposés au prix de 187 100 € (Hors branchements et raccordements, papiers peints, peintures, revêtement de sol dans les chambres. Tarif modifiable sans préavis). Etiquette énergie : A. Différents modèles disponibles pour ce terrain. Assurances et garanties du constructeur (RC professionnelle, décennale, dommage ouvrage, garantie de remboursement de l'acompte, livraison à prix et délai convenu) : https://www.lesmaisonsextraco.fr/informations-legales/.Agence Maisons Extraco de Gravigny (27930)
- Téléphone :
- 02 32 31 20 44
- Adressse :
- 165 Avenue Aristide Briand
27930 Gravigny, France
