Maison neuve à
Honfleur
(14600) Référence :
AC2350516_3
Prix du projet : Maison avec Terrain
prix 224 800 €
- 5 pièces
- 4 chambres
- Surface maison 85 m2
VENTE : maison de 5 pièces (85 m²) à 15 km d'Honfleur
MAISON 5 PIÈCES NEUVE - PROCHE DU HAVRE
En vente sur les bords de l'estuaire de la Seine, largement en amont du pont de Normandie et à deux pas du Havre, notre agence EXTRACO Construction Rénovation Pont-l'Évêque est heureuse de vous proposer cette maison de 5 pièces de 85 m² proche Honfleur (14600).
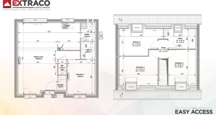
Il s'agit d'une maison de 2 niveaux. Elle comporte quatre chambres, une cuisine et deux salles de bains. Cette maison est neuve.
Le terrain de la propriété s'étend sur 505 m².
Il y a l'École Élémentaire.
Elle est à vendre pour la somme de 224 800 €.
Prenez contact avec notre agence (CUVILLIERS Angélique : 07-63-32-12-06) pour obtenir de plus amples informations sur la maison ou sur les modalités de vente.
Mentions légales
Terrain proposé par un partenaire foncier selon disponibilités et autorisation de publicité au prix de 79 000 €. Hors droit d'enregistrement et frais de notaire. Maison proposée, avec un contrat de construction de maison individuelle, dans le cadre de la loi du 19/12/1990, au prix de 145 800 € (Hors branchements et raccordements, papiers peints, peintures, revêtement de sol dans les chambres, qui sont chiffrés dans les travaux qui restent à charge du client. Tarif modifiable sans préavis). Étiquette énergie : A. Différents modèles disponibles pour ce terrain. Assurances et garanties du constructeur comprises (RC professionnelle, décennale, dommage ouvrage).Agence Maisons Extraco de Pont-l'Évêque (14130)
- Téléphone :
- 02 31 64 00 00
- Adressse :
- 20 rue Hamelin
14130 Pont-l'Évêque, France
