Maison neuve à
Honfleur
(14600) Référence :
AC2413076s5_1
Prix du projet : Maison avec Terrain
prix 283 400 €
- 4 pièces
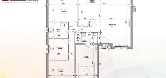
- 3 chambres
- Surface maison 94 m2
OSSATURE BOIS
Maison de 4 pièces (94 m²) à vendre à 10 km d'Honfleur
IDÉALEMENT SITUÉE - MAISON 4 PIÈCES NEUVE
En vente : située à deux pas du Havre, idéalement située proche Honfleur (14600), EXTRACO Construction Rénovation Pont-l'Évêque vous propose cette maison de 4 pièces de plain-pied de 94 m².
Son intérieur inclut trois chambres, une cuisine et deux salles de bains. Cette maison est neuve.
Le terrain de la propriété est de 505 m².
La maison est située dans un quartier recherché. L'École Élémentaire et l'École Primaire se trouve à côté. Les autoroutes A29 et A131 et la nationale N282 sont accessibles à moins de 10 km.
Elle est à vendre pour la somme de 283 400 €.
N'hésitez pas à prendre contact avec notre agence (CUVILLIERS Angélique : 07-63-32-12-06) pour obtenir de plus amples renseignements sur la maison, sur les modalités de vente ou sur les démarches à suivre. Donnez vie à vos projets immobiliers avec EXTRACO Construction Rénovation Pont-l'Évêque.
Mentions légales
Terrain proposé par un partenaire foncier selon disponibilités et autorisation de publicité au prix de 79 000 €. Hors droit d'enregistrement et frais de notaire. Terrain + Maison proposés au prix de 283 400 € (Hors branchements et raccordements, papiers peints, peintures, revêtement de sol dans les chambres. Tarif modifiable sans préavis). Etiquette énergie : A. Différents modèles disponibles pour ce terrain. Assurances et garanties du constructeur (RC professionnelle, décennale, dommage ouvrage, garantie de remboursement de l'acompte, livraison à prix et délai convenu) : https://www.lesmaisonsextraco.fr/informations-legales/.Agence Maisons Extraco de Pont-l'Évêque (14130)
- Téléphone :
- 02 31 64 00 00
- Adressse :
- 20 rue Hamelin
14130 Pont-l'Évêque, France
