Maison neuve à
Igoville
(27460) Référence :
JT-PDA-SEM47-1-4_2
Prix du projet : Maison avec Terrain
prix 186 300 €
- 3 pièces
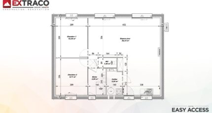
- 2 chambres
- Surface maison 65 m2
VENTE d'une maison T3 (65 m²) à Igoville
IDÉALEMENT SITUÉE - MAISON 3 PIÈCES NEUVE
À vendre à deux pas de Rouen, découvrez cette maison de 3 pièces de plain-pied de 65 m² et de 343 m² de terrain, idéalement située dans Igoville (27460).
Conçue de plain-pied, elle est composée de deux chambres, d'une cuisine et d'une salle de bains. Cette maison est neuve.
La maison se situe dans un quartier recherché. On y trouve des écoles maternelles et élémentaires. Côté transports en commun, il y a cinq gares à moins de 10 minutes en voiture. Les autoroutes A13 et A154 sont accessibles à moins de 9 km. On trouve un tennis, un commerce, une boulangerie, une boucherie-charcuterie et un bureau de poste à proximité du logement.
Son prix de vente est de 186 300 €.
N'hésitez pas à prendre contact avec notre agence (THOMAS Julien : 06-69-32-53-30) pour toute information sur la maison. Les Maisons Extraco Pont-de-l'Arche est là pour vous accompagner dans tous vos projets immobiliers.
Mentions légales
Terrain proposé par un partenaire foncier selon disponibilités et autorisation de publicité au prix de 76 000 €. Hors droit d'enregistrement et frais de notaire. Maison proposée, avec un contrat de construction de maison individuelle, dans le cadre de la loi du 19/12/1990, au prix de 110 300 € (Hors branchements et raccordements, papiers peints, peintures, revêtement de sol dans les chambres, qui sont chiffrés dans les travaux qui restent à charge du client. Tarif modifiable sans préavis). Étiquette énergie : A. Différents modèles disponibles pour ce terrain. Assurances et garanties du constructeur comprises (RC professionnelle, décennale, dommage ouvrage).Agence Maisons Extraco de Pont-de-l'Arche (27340)
- Téléphone :
- 02 35 02 19 99
- Adressse :
- 26 rue près Roosevelt
27340 Pont-de-l'Arche, France
