Maison neuve à
Igoville
(27460) Référence :
JT-PDA-SEM47-1-4_3
Prix du projet : Maison avec Terrain
prix 201 000 €
- 4 pièces
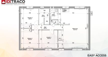
- 3 chambres
- Surface maison 80 m2
Igoville : maison T4 (80 m²) à vendre
IDÉALEMENT SITUÉE - MAISON 4 PIÈCES NEUVE
À 14 km de Rouen, nous sommes ravis de vous présenter cette maison de 4 pièces de plain-pied de 80 m² et de 343 m² de terrain à vendre, idéalement située dans Igoville (27460).
Son intérieur offre trois chambres, une cuisine et une salle de bains. Cette maison est neuve.
La maison est située dans un quartier recherché. Des écoles maternelles et élémentaires y sont implantées. Niveau transports en commun, il y a cinq gares à moins de 10 minutes en voiture. Les autoroutes A13 et A154 sont accessibles à moins de 9 km. On trouve un tennis, un commerce, une boulangerie, un bureau de poste et une boucherie-charcuterie à proximité de la maison.
Son prix de vente est de 201 000 €.
Contactez Julien THOMAS (06-69-32-53-30) pour tout renseignement sur la maison ou sur les démarches à suivre.
Mentions légales
Terrain proposé par un partenaire foncier selon disponibilités et autorisation de publicité au prix de 76 000 €. Hors droit d'enregistrement et frais de notaire. Maison proposée, avec un contrat de construction de maison individuelle, dans le cadre de la loi du 19/12/1990, au prix de 125 000 € (Hors branchements et raccordements, papiers peints, peintures, revêtement de sol dans les chambres, qui sont chiffrés dans les travaux qui restent à charge du client. Tarif modifiable sans préavis). Étiquette énergie : A. Différents modèles disponibles pour ce terrain. Assurances et garanties du constructeur comprises (RC professionnelle, décennale, dommage ouvrage).Agence Maisons Extraco de Pont-de-l'Arche (27340)
- Téléphone :
- 02 35 02 19 99
- Adressse :
- 26 rue près Roosevelt
27340 Pont-de-l'Arche, France
