Maison neuve à
Igoville
(27460) Référence :
JT-PDA-SEM49-6-2_1
Prix du projet : Maison avec Terrain
prix 226 990 €
- 4 pièces
- 3 chambres
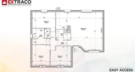
- Surface maison 84 m2
VENTE : maison T4 (84 m²) à Igoville
QUARTIER RECHERCHÉ - MAISON 4 PIÈCES NEUVE
À 14 km de Rouen, en vente dans un quartier attractif d'Igoville (27460), laissez vous charmer par cette maison de 4 pièces de plain-pied de 84 m² et de 404 m² de terrain.
Elle est composée de trois chambres, d'une cuisine et d'une salle de bains. Cette maison est neuve.
La maison se situe dans un secteur convoité. On y trouve des écoles primaires. Niveau transports en commun, il y a cinq gares à moins de 10 minutes en voiture. Les autoroutes A13 et A154 sont accessibles à moins de 9 km. On trouve un tennis, un commerce, une boulangerie, une boucherie-charcuterie et un bureau de poste dans les environs.
Elle est proposée à l'achat pour 226 990 €.
Contactez notre agence (THOMAS Julien : 06-69-32-53-30) pour plus d'informations sur la maison.
Mentions légales
Terrain proposé par un partenaire foncier selon disponibilités et autorisation de publicité au prix de 87 000 €. Hors droit d'enregistrement et frais de notaire. Maison proposée, avec un contrat de construction de maison individuelle, dans le cadre de la loi du 19/12/1990, au prix de 139 990 € (Hors branchements et raccordements, papiers peints, peintures, revêtement de sol dans les chambres, qui sont chiffrés dans les travaux qui restent à charge du client. Tarif modifiable sans préavis). Étiquette énergie : A. Différents modèles disponibles pour ce terrain. Assurances et garanties du constructeur comprises (RC professionnelle, décennale, dommage ouvrage).Agence Maisons Extraco de Pont-de-l'Arche (27340)
- Téléphone :
- 02 35 02 19 99
- Adressse :
- 26 rue près Roosevelt
27340 Pont-de-l'Arche, France
