Maison neuve à
Igoville
(27460) Référence :
JT-PDA-SEM49-6-2_3
Prix du projet : Maison avec Terrain
prix 225 980 €
- 4 pièces
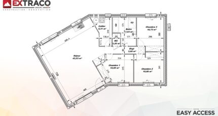
- 3 chambres
- Surface maison 93 m2
Igoville : maison T4 (93 m²) en vente
QUARTIER RECHERCHÉ - MAISON 4 PIÈCES NEUVE
À quelques kilomètres de Rouen, en vente située dans un secteur convoité d'Igoville (27460), notre agence Les Maisons Extraco Pont-de-l'Arche est ravie de vous présenter cette maison de 4 pièces de plain-pied de 93 m² et de 404 m² de terrain. Son intérieur est composé de trois chambres, d'une cuisine et d'une salle de bains.
Cette maison est neuve.
La maison est située dans un quartier recherché. On y trouve des écoles primaires. Côté transports, il y a cinq gares à moins de 10 minutes en voiture. Les autoroutes A13 et A154 sont accessibles à moins de 9 km. On trouve un tennis, un commerce, une boulangerie, une boucherie-charcuterie et un bureau de poste à proximité.
Son prix de vente est de 225 980 €.
Contactez notre constructeur (THOMAS Julien : 06-69-32-53-30) pour toute question sur la propriété. Les Maisons Extraco Pont-de-l'Arche vous accompagne dans toutes vos démarches et à toutes les étapes de votre projet.
Mentions légales
Terrain proposé par un partenaire foncier selon disponibilités et autorisation de publicité au prix de 87 000 €. Hors droit d'enregistrement et frais de notaire. Maison proposée, avec un contrat de construction de maison individuelle, dans le cadre de la loi du 19/12/1990, au prix de 138 980 € (Hors branchements et raccordements, papiers peints, peintures, revêtement de sol dans les chambres, qui sont chiffrés dans les travaux qui restent à charge du client. Tarif modifiable sans préavis). Étiquette énergie : A. Différents modèles disponibles pour ce terrain. Assurances et garanties du constructeur comprises (RC professionnelle, décennale, dommage ouvrage).Agence Maisons Extraco de Pont-de-l'Arche (27340)
- Téléphone :
- 02 35 02 19 99
- Adressse :
- 26 rue près Roosevelt
27340 Pont-de-l'Arche, France
