Maison neuve à
Illois
(76390) Référence :
SE2350995_2
Prix du projet : Maison avec Terrain
prix 189 500 €
- 4 pièces
- 3 chambres
- Surface maison 93 m2
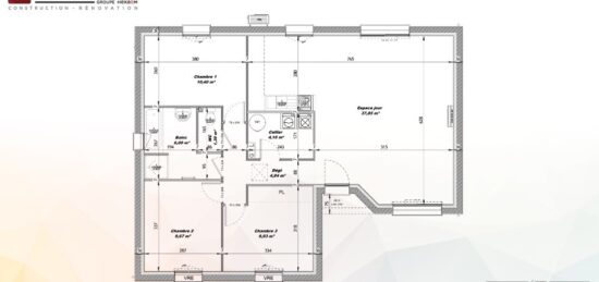
Maison de 4 pièces (93 m²) en vente à Illois
MAISON 4 PIÈCES NEUVE
En vente à 46 km de la Manche, nous sommes heureux de vous proposer à Illois (76390), cette maison de 4 pièces de plain-pied de 93 m² et de 861 m² de terrain.
Conçue de plain-pied, elle offre trois chambres, une cuisine et une salle de bains. La maison est neuve.
Une école primaire est implantée dans le quartier. Niveau transports, il y a la gare Aumale à moins de 10 minutes en voiture. Il y a un accès à l'autoroute A29 à 4 km.
Son prix de vente est de 189 500 €.
N'hésitez pas à prendre contact avec notre agence (Slimane ELHLOU : 06-17-96-02-17) pour obtenir de plus amples renseignements sur la maison. Les Maisons Extraco Dieppe vous accompagne dans tous vos projets immobiliers et dans toutes vos démarches.
Mentions légales
Terrain proposé par un partenaire foncier selon disponibilités et autorisation de publicité au prix de 31 800 €. Hors droit d'enregistrement et frais de notaire. Maison proposée, avec un contrat de construction de maison individuelle, dans le cadre de la loi du 19/12/1990, au prix de 157 700 € (Hors branchements et raccordements, papiers peints, peintures, revêtement de sol dans les chambres, qui sont chiffrés dans les travaux qui restent à charge du client. Tarif modifiable sans préavis). Étiquette énergie : A. Différents modèles disponibles pour ce terrain. Assurances et garanties du constructeur comprises (RC professionnelle, décennale, dommage ouvrage).Agence Maisons Extraco de Dieppe (76200)
- Téléphone :
- 02 35 06 07 50
- Adressse :
- 78 rue de la Barre
76200 Dieppe, France
