Maison neuve à
Illois
(76390) Référence :
SE2418050_2
Prix du projet : Maison avec Terrain
prix 170 300 €
- 4 pièces
- 3 chambres
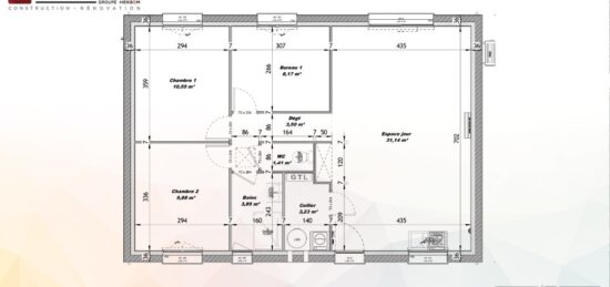
- Surface maison 93 m2
Maison de 4 pièces (93 m²) en vente à Illois
IDÉALEMENT SITUÉE - MAISON 4 PIÈCES NEUVE
En vente : à 46 km de la Manche, idéalement située dans Illois (76390), découvrez cette maison de 4 pièces de plain-pied de 93 m² et de 861 m² de terrain. Son intérieur propose trois chambres, une cuisine et une salle de bains.
Cette maison est neuve.
La maison se situe dans un secteur attractif. On y trouve une école primaire. Niveau transports, on trouve la gare Aumale à moins de 10 minutes en voiture. Il y a un accès à l'autoroute A29 à 4 km.
Elle est proposée à l'achat pour 170 300 €.
N'hésitez pas à prendre contact avec notre agence (Slimane ELHLOU : 06-17-96-02-17) pour plus d'informations sur la maison ou sur les démarches à suivre.
Mentions légales
Terrain proposé par un partenaire foncier selon disponibilités et autorisation de publicité au prix de 31 800 €. Hors droit d'enregistrement et frais de notaire. Terrain + Maison proposés au prix de 170 300 € (Hors branchements et raccordements, papiers peints, peintures, revêtement de sol dans les chambres. Tarif modifiable sans préavis). Etiquette énergie : A. Différents modèles disponibles pour ce terrain. Assurances et garanties du constructeur (RC professionnelle, décennale, dommage ouvrage, garantie de remboursement de l'acompte, livraison à prix et délai convenu) : https://www.lesmaisonsextraco.fr/informations-legales/.Agence Maisons Extraco de Dieppe (76200)
- Téléphone :
- 02 35 06 07 50
- Adressse :
- 78 rue de la Barre
76200 Dieppe, France
