Maison neuve à
Incarville
(27400) Référence :
PM_PDA_SEM47_01_3
Prix du projet : Maison avec Terrain
prix 180 300 €
- 4 pièces
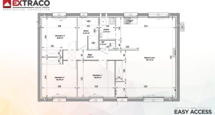
- 3 chambres
- Surface maison 80 m2
Incarville : maison de 4 pièces (80 m²) en vente
PROCHE DE ROUEN - MAISON 4 PIÈCES NEUVE
En vente à 21 km de Rouen, nous sommes ravis de vous proposer cette maison de 4 pièces de plain-pied de 80 m² à Incarville (27400).
Conçue de plain-pied, elle inclut trois chambres, une cuisine et une salle de bains. Cette maison est neuve.
Le terrain de la propriété est de 379 m².
On trouve des écoles maternelles et élémentaires dans le quartier. Côté transports en commun, il y a trois gares (Saint-Pierre-du-Vauvray, Val-de-Reuil et Pont-de-l'Arche) à moins de 10 minutes en voiture. L'autoroute A154 est accessible à 1 km. On trouve un tennis, quatre commerces, une boulangerie et deux épiceries dans les environs.
Elle est à vendre pour la somme de 180 300 €.
Contactez notre agence (Peter MORIN : 06-67-34-23-40) pour toute information sur la maison, sur les modalités de vente ou sur les démarches à suivre.
Mentions légales
Terrain proposé par un partenaire foncier selon disponibilités et autorisation de publicité au prix de 54 000 €. Hors droit d'enregistrement et frais de notaire. Maison proposée, avec un contrat de construction de maison individuelle, dans le cadre de la loi du 19/12/1990, au prix de 126 300 € (Hors branchements et raccordements, papiers peints, peintures, revêtement de sol dans les chambres, qui sont chiffrés dans les travaux qui restent à charge du client. Tarif modifiable sans préavis). Étiquette énergie : A. Différents modèles disponibles pour ce terrain. Assurances et garanties du constructeur comprises (RC professionnelle, décennale, dommage ouvrage).Agence Maisons Extraco de Pont-de-l'Arche (27340)
- Téléphone :
- 02 35 02 19 99
- Adressse :
- 26 rue près Roosevelt
27340 Pont-de-l'Arche, France
