Maison neuve à
La Chapelle-Yvon
(14290) Référence :
AC2349006s48_3
Prix du projet : Maison avec Terrain
prix 169 800 €
- 4 pièces
- 2 chambres
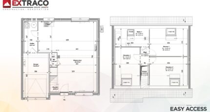
- Surface maison 81 m2
VENTE : maison F4 (81 m²) à La Chapelle-Yvon
IDÉALEMENT SITUÉE - MAISON 4 PIÈCES NEUVE
En vente : votre agence Les Maisons Extraco Pont-l'Évêque est ravie de vous présenter cette maison de 4 pièces de 81 m² idéalement située dans La Chapelle-Yvon (14290).
Cette maison comporte 2 niveaux. Elle propose deux chambres, une cuisine et une salle de bains. Cette maison est neuve.
Le terrain de la propriété est de 396 m².
La maison est située dans un quartier prisé. L'École Primaire la Chapelle Yvon est implantée à moins de 10 minutes à pied. On trouve un accès à l'autoroute A28 à 9 km. On trouve un commerce à proximité du logement.
Elle est à vendre pour la somme de 169 800 €.
Contactez Angélique CUVILLIERS (07-63-32-12-06) pour plus d'informations sur le bien.
Mentions légales
Terrain proposé par un partenaire foncier selon disponibilités et autorisation de publicité au prix de 25 500 €. Hors droit d'enregistrement et frais de notaire. Maison proposée, avec un contrat de construction de maison individuelle, dans le cadre de la loi du 19/12/1990, au prix de 144 300 € (Hors branchements et raccordements, papiers peints, peintures, revêtement de sol dans les chambres, qui sont chiffrés dans les travaux qui restent à charge du client. Tarif modifiable sans préavis). Étiquette énergie : A. Différents modèles disponibles pour ce terrain. Assurances et garanties du constructeur comprises (RC professionnelle, décennale, dommage ouvrage).Agence Maisons Extraco de Pont-l'Évêque (14130)
- Téléphone :
- 02 31 64 00 00
- Adressse :
- 20 rue Hamelin
14130 Pont-l'Évêque, France
