Maison neuve à
Le Breuil-en-Auge
(14130) Référence :
MP2370634_4
Prix du projet : Maison avec Terrain
prix 187 000 €
- 4 pièces
- 3 chambres
- Surface maison 80 m2
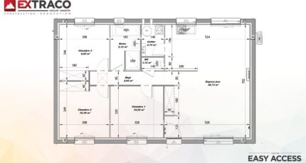
VENTE d'une maison de 4 pièces (80 m²) au Breuil-en-Auge
EMPLACEMENT PRIVILÉGIÉ - MAISON 4 PIÈCES NEUVE
À vendre à 22 km de la Manche et à 31 km du Havre, nous vous présentons, bénéficiant d'un emplacement privilégié dans Le Breuil-en-Auge (14130), cette maison de 4 pièces de plain-pied de 80 m² et de 451 m² de terrain. Elle inclut trois chambres, une cuisine et une salle de bains.
Cette maison est neuve.
La maison se trouve dans un quartier recherché. On y trouve une école primaire. Côté transports, il y a trois gares (Pont-l'Évêque, Le Grand Jardin et Lisieux) à moins de 10 minutes en voiture. Les autoroutes A13 et A132 sont accessibles à moins de 8 km. On trouve une boulangerie et une épicerie dans les environs.
Son prix de vente est de 187 000 €.
Contactez notre agence (Marion PAIN : 06-67-04-73-85) pour toute question sur la maison, sur les démarches à suivre ou sur les modalités de vente.
Mentions légales
Terrain proposé par un partenaire foncier selon disponibilités et autorisation de publicité au prix de 56 375 €. Hors droit d'enregistrement et frais de notaire. Terrain + Maison proposés au prix de 130 625 € (Hors branchements et raccordements, papiers peints, peintures, revêtement de sol dans les chambres. Tarif modifiable sans préavis). Etiquette énergie : A. Différents modèles disponibles pour ce terrain. Assurances et garanties du constructeur (RC professionnelle, décennale, dommage ouvrage, garantie de remboursement de l'acompte, livraison à prix et délai convenu) : https://www.lesmaisonsextraco.fr/informations-legales/.Agence Maisons Extraco de Pont-l'Évêque (14130)
- Téléphone :
- 02 31 64 00 00
- Adressse :
- 20 rue Hamelin
14130 Pont-l'Évêque, France
