Maison neuve à
Le Neubourg
(27110) Référence :
PM_PDA_SEM49_06-0_1
Prix du projet : Maison avec Terrain
prix 182 990 €
- 4 pièces
- 3 chambres
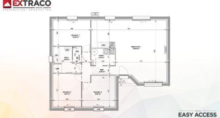
- Surface maison 84 m2
VENTE d'une maison de 4 pièces (84 m²) à proximité le Neubourg
PROCHE D'ÉVREUX - MAISON 4 PIÈCES NEUVE
À vendre à deux pas d'Évreux, à proximité le Neubourg (27110), Les Maisons Extraco Pont-de-l'Arche vous présente cette maison de 4 pièces de plain-pied de 84 m² et de 955 m² de terrain.
Conçue de plain-pied, elle comporte trois chambres, une cuisine et une salle de bains. Cette maison est neuve.
Cinq établissements scolaires sont implantés à moins de 10 minutes à pied. L'autoroute A28 et la nationale N13 sont accessibles à moins de 19 km. On trouve une bibliothèque, un tennis, un bassin de natation, un supermarché, des commerces, des boulangeries, quatre boucheries-charcuteries et une supérette dans les environs. Le marché Place du Chateau a lieu tous les mercredis matin.
Elle est à vendre pour la somme de 182 990 €.
Prenez contact avec notre agence (Peter MORIN : 06-67-34-23-40) pour obtenir de plus amples renseignements sur la maison.
Mentions légales
Terrain proposé par un partenaire foncier selon disponibilités et autorisation de publicité au prix de 43 000 €. Hors droit d'enregistrement et frais de notaire. Maison proposée, avec un contrat de construction de maison individuelle, dans le cadre de la loi du 19/12/1990, au prix de 139 990 € (Hors branchements et raccordements, papiers peints, peintures, revêtement de sol dans les chambres, qui sont chiffrés dans les travaux qui restent à charge du client. Tarif modifiable sans préavis). Étiquette énergie : A. Différents modèles disponibles pour ce terrain. Assurances et garanties du constructeur comprises (RC professionnelle, décennale, dommage ouvrage).Agence Maisons Extraco de Pont-de-l'Arche (27340)
- Téléphone :
- 02 35 02 19 99
- Adressse :
- 26 rue près Roosevelt
27340 Pont-de-l'Arche, France
