Maison neuve à
Le Thil-Riberpré
(76440) Référence :
SE2350744_1
Prix du projet : Maison avec Terrain
prix 156 600 €
- 4 pièces
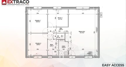
- 2 chambres
- Surface maison 71 m2
Maison de 4 pièces (71 m²) à vendre au Thil-Riberpré
MAISON 4 PIÈCES NEUVE
Les Maisons Extraco Dieppe vous propose cette maison de 4 pièces de plain-pied de 71 m² et de 950 m² de terrain au Thil-Riberpré (76440). Elle compte deux chambres, une cuisine et une salle de bains.
La maison est neuve.
Il y a tous les types d'écoles (de la maternelle au lycée) à moins de 10 minutes en voiture. Côté transports en commun, on trouve la gare Serqueux dans les environs. Il y a trois tennis, trois bibliothèques, deux bassins de natation, des commerces, des boulangeries, deux supermarchés, trois bureaux de poste et deux supérettes à quelques minutes à peine.
Elle est proposée à l'achat pour 156 600 €.
Prenez contact avec Slimane ELHLOU (06-17-96-02-17) pour tout renseignement sur la maison ou sur les modalités de vente.
Mentions légales
Terrain proposé par un partenaire foncier selon disponibilités et autorisation de publicité au prix de 30 000 €. Hors droit d'enregistrement et frais de notaire. Maison proposée, avec un contrat de construction de maison individuelle, dans le cadre de la loi du 19/12/1990, au prix de 126 600 € (Hors branchements et raccordements, papiers peints, peintures, revêtement de sol dans les chambres, qui sont chiffrés dans les travaux qui restent à charge du client. Tarif modifiable sans préavis). Étiquette énergie : A. Différents modèles disponibles pour ce terrain. Assurances et garanties du constructeur comprises (RC professionnelle, décennale, dommage ouvrage).Agence Maisons Extraco de Dieppe (76200)
- Téléphone :
- 02 35 06 07 50
- Adressse :
- 78 rue de la Barre
76200 Dieppe, France
