Maison neuve à
Le Vaudreuil
(27100) Référence :
PM_PDA_SEM09_06-1_1
Prix du projet : Maison avec Terrain
prix 219 990 €
- 4 pièces
- 3 chambres
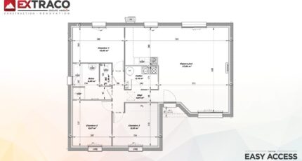
- Surface maison 84 m2
VENTE d'une maison de 4 pièces (84 m²) à SAINT ETIENNE DU VAUVRAY
MAISON 4 PIÈCES NEUVE - PROCHE DE ROUEN
À deux pas de Rouen, à vendre à SAINT ETIENNE DU VAUVRAY, nous vous présentons cette maison de 4 pièces de plain-pied de 84 m² et de 701 m² de terrain.
Elle offre trois chambres, une cuisine et une salle de bains. La maison est neuve.
Quatre établissements scolaires sont implantés à moins de 10 minutes à pied, tout comme dont l'École Maternelle les Tilleuls, le Collège Michel de Montaigne et l'École Primaire Privée Saint Henri. Niveau transports en commun, on trouve les gares Val-de-Reuil, Saint-Pierre-du-Vauvray et Pont-de-l'Arche à moins de 10 minutes en voiture. Il y a trois tennis, une bibliothèque, des commerces, une boulangerie, une boucherie-charcuterie, une épicerie et un bureau de poste à quelques minutes à peine.
Elle est à vendre pour la somme de 219 990 €.
Contactez notre agence (MORIN Peter : 06-67-34-23-40) pour tout renseignement sur cette maison. Concrétisez vos projets immobiliers avec Les Maisons Extraco Pont-de-l'Arche.
Mentions légales
Terrain proposé par un partenaire foncier selon disponibilités et autorisation de publicité au prix de 80 000 €. Hors droit d'enregistrement et frais de notaire. Terrain + Maison proposés au prix de 219 990 € (Hors branchements et raccordements, papiers peints, peintures, revêtement de sol dans les chambres. Tarif modifiable sans préavis). Etiquette énergie : A. Différents modèles disponibles pour ce terrain. Assurances et garanties du constructeur (RC professionnelle, décennale, dommage ouvrage, garantie de remboursement de l'acompte, livraison à prix et délai convenu) : https://www.lesmaisonsextraco.fr/informations-legales/.Agence Maisons Extraco de Pont-de-l'Arche (27340)
- Téléphone :
- 02 35 02 19 99
- Adressse :
- 26 rue près Roosevelt
27340 Pont-de-l'Arche, France
