Maison neuve à
Les Andelys
(27700) Référence :
CG2377024_1
Prix du projet : Maison avec Terrain
prix 218 600 €
- 4 pièces
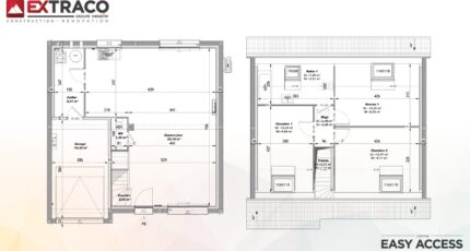
- 2 chambres
- Surface maison 81 m2
Les Andelys : maison de 4 pièces (81 m²) à vendre
EMPLACEMENT PRIVILÉGIÉ - MAISON 4 PIÈCES NEUVE
En vente à quelques kilomètres de Saint-Étienne-du-Rouvray, bénéficiant d'un emplacement privilégié dans Les Andelys (27700), votre agence Les Maisons Extraco Les Andelys est ravie de vous présenter cette maison de 4 pièces de 81 m² et de 400 m² de terrain. Son intérieur offre deux chambres, une cuisine et une salle de bains.
Il s'agit d'une maison de 2 niveaux. Elle est neuve.
La maison se situe dans un secteur convoité. On trouve le Collège Roger Gaudeau, l'École Primaire Marcel Lefèvre et l'École Élémentaire Jean Pierre Blanchard à moins de 10 minutes à pied et une crèche. Niveau transports, il y a la gare Gaillon-Aubevoye à moins de 10 minutes en voiture. Les autoroutes A13 et A154 et la nationale N154 sont accessibles à moins de 20 km. On trouve des boulangeries, des commerces, deux supermarchés, trois boucheries-charcuteries et trois épiceries à quelques minutes à peine. Enfin, le marché Place Poussin a lieu tous les samedis.
Elle est à vendre pour la somme de 218 600 €.
Contactez notre agence (Carole GOITA : 06-50-10-84-99) pour toute information sur la maison. Extraco Construction Rénovation Les Andelys est là pour vous accompagner dans toutes vos démarches.
Mentions légales
Terrain proposé par un partenaire foncier selon disponibilités et autorisation de publicité au prix de 52 800 €. Hors droit d'enregistrement et frais de notaire. Terrain + Maison proposés au prix de 165 800 € (Hors branchements et raccordements, papiers peints, peintures, revêtement de sol dans les chambres. Tarif modifiable sans préavis). Etiquette énergie : A. Différents modèles disponibles pour ce terrain. Assurances et garanties du constructeur (RC professionnelle, décennale, dommage ouvrage, garantie de remboursement de l'acompte, livraison à prix et délai convenu) : https://www.lesmaisonsextraco.fr/informations-legales/.Agence Maisons Extraco de Les Andelys (27700)
- Téléphone :
- 02 32 51 77 46
- Adressse :
- 51 Avenue de la République
27700 Les Andelys, France
