Maison neuve à
Les Ventes
(27180) Référence :
OS2418160_1
Prix du projet : Maison avec Terrain
prix 183 600 €
- 5 pièces
- 3 chambres
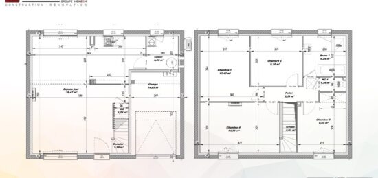
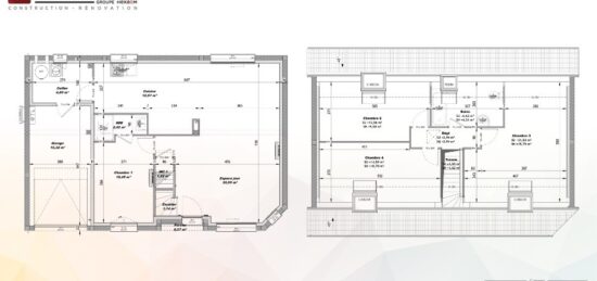
- Surface maison 86 m2
Les Ventes : maison T5 (86 m²) à vendre
IDÉALEMENT SITUÉE - MAISON 5 PIÈCES NEUVE
À vendre : à quelques kilomètres d'Évreux, idéalement située dans Les Ventes (27180), nous sommes heureux de vous proposer cette maison de 5 pièces de 86 m² et de 864 m² de terrain.
C'est une maison de 2 niveaux. Elle compte trois chambres, une cuisine et une salle de bains. Cette maison est neuve.
La maison est située dans un quartier convoité. On y trouve une école primaire. Niveau transports, on trouve les gares La Bonneville-sur-Iton et Évreux Normandie à moins de 10 minutes en voiture. Les nationales N13 et N154 sont accessibles à moins de 9 km. Il y a une boulangerie dans les environs.
Elle est à vendre pour la somme de 183 600 €.
Contactez Oumayma SONMEZ (06-68-92-00-86) pour plus d'informations sur le bien ou sur les modalités de vente. Les Maisons Extraco Gravigny vous accompagne dans tous vos projets immobiliers et dans toutes vos démarches.
Mentions légales
Terrain proposé par un partenaire foncier selon disponibilités et autorisation de publicité au prix de 47 000 €. Hors droit d'enregistrement et frais de notaire. Terrain + Maison proposés au prix de 183 600 € (Hors branchements et raccordements, papiers peints, peintures, revêtement de sol dans les chambres. Tarif modifiable sans préavis). Etiquette énergie : A. Différents modèles disponibles pour ce terrain. Assurances et garanties du constructeur (RC professionnelle, décennale, dommage ouvrage, garantie de remboursement de l'acompte, livraison à prix et délai convenu) : https://www.lesmaisonsextraco.fr/informations-legales/.Agence Maisons Extraco de Gravigny (27930)
- Téléphone :
- 02 32 31 20 44
- Adressse :
- 165 Avenue Aristide Briand
27930 Gravigny, France
