Maison neuve à
Loconville
(60240) Référence :
CG2377012_3
Prix du projet : Maison avec Terrain
prix 299 000 €
- 4 pièces
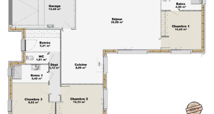
- 3 chambres
- Surface maison 94 m2
VENTE : maison T4 (94 m²) à Loconville
EMPLACEMENT PRIVILÉGIÉ - MAISON 4 PIÈCES NEUVE
À vendre : à côté du Transilien J (gare de Chaumont-en-Vexin, 1 h de Paris), bénéficiant d'un emplacement privilégié dans Loconville (60240), notre agence Extraco Construction Rénovation Les Andelys est heureuse de vous proposer cette maison de 4 pièces de plain-pied de 94 m² et de 700 m² de terrain.
Son intérieur compte trois chambres, une cuisine et deux salles de bains. La maison est neuve.
Cette maison est située dans un secteur prisé. Une école primaire y est implantée. Niveau transports, on trouve quatre gares à moins de 10 minutes en voiture. L'autoroute A16 et la nationale N31 sont accessibles à moins de 18 km et Cergy est située à 26 km.
Elle est à vendre pour la somme de 299 000 €.
Contactez notre agence (GOITA Carole : 06-50-10-84-99) pour obtenir de plus amples informations sur la maison ou sur les démarches à suivre. Extraco Construction Rénovation Les Andelys est là pour vous accompagner à toutes les étapes de l'achat.
Mentions légales
Terrain proposé par un partenaire foncier selon disponibilités et autorisation de publicité au prix de 70 000 €. Hors droit d'enregistrement et frais de notaire. Terrain + Maison proposés au prix de 229 000 € (Hors branchements et raccordements, papiers peints, peintures, revêtement de sol dans les chambres. Tarif modifiable sans préavis). Etiquette énergie : A. Différents modèles disponibles pour ce terrain. Assurances et garanties du constructeur (RC professionnelle, décennale, dommage ouvrage, garantie de remboursement de l'acompte, livraison à prix et délai convenu) : https://www.lesmaisonsextraco.fr/informations-legales/.Agence Maisons Extraco de Les Andelys (27700)
- Téléphone :
- 02 32 51 77 46
- Adressse :
- 51 Avenue de la République
27700 Les Andelys, France
