Maison neuve à
Manerbe
(14340) Référence :
MP2419645_1
Prix du projet : Maison avec Terrain
prix 256 000 €
- 5 pièces
- 4 chambres
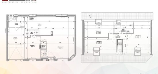
- Surface maison 114 m2
Maison de 5 pièces (114 m²) en vente à Manerbe
IDÉALEMENT SITUÉE - MAISON 5 PIÈCES NEUVE
À vendre à 22 km de la Manche, idéalement située dans Manerbe (14340), nous vous présentons cette maison de 5 pièces de plain-pied de 114 m² et de 1 771 m² de terrain.
Elle dispose de quatre chambres, d'une cuisine et d'une salle de bains. Cette maison est neuve.
La propriété est située dans un secteur recherché. Il y a des établissements scolaires de tous types à moins de 10 minutes en voiture. Niveau transports en commun, on trouve deux gares (Le Grand Jardin et Lisieux) dans un rayon de 10 km. On trouve un accès à l'autoroute A13 à 10 km. Il y a des bibliothèques, des tennis, un bassin de natation, un bowling, des supermarchés, des commerces, des boulangeries, quatre bureaux de poste et deux poissonneries à proximité du logement. Enfin, le marché Place de la République a lieu tous les samedis.
Elle est à vendre pour la somme de 256 000 €.
Contactez Marion PAIN (06-67-04-73-85) pour toute question sur la maison, sur les démarches à suivre ou sur les modalités de vente. Extraco construction rénovation Pont-l'Évêque vous accompagne à toutes les étapes de votre projet et dans tous vos projets immobiliers.
Mentions légales
Terrain proposé par un partenaire foncier selon disponibilités et autorisation de publicité au prix de 90 626 €. Hors droit d'enregistrement et frais de notaire. Terrain + Maison proposés au prix de 256 000 € (Hors branchements et raccordements, papiers peints, peintures, revêtement de sol dans les chambres. Tarif modifiable sans préavis). Etiquette énergie : A. Différents modèles disponibles pour ce terrain. Assurances et garanties du constructeur (RC professionnelle, décennale, dommage ouvrage, garantie de remboursement de l'acompte, livraison à prix et délai convenu) : https://www.lesmaisonsextraco.fr/informations-legales/.Agence Maisons Extraco de Pont-l'Évêque (14130)
- Téléphone :
- 02 31 64 00 00
- Adressse :
- 20 rue Hamelin
14130 Pont-l'Évêque, France
