Maison neuve à
Marais-Vernier
(27680) Référence :
JP2418546_2
Prix du projet : Maison avec Terrain
prix 234 000 €
- 5 pièces
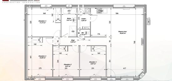
- 4 chambres
- Surface maison 105 m2
Maison T5 (105 m²) à vendre à Marais-Vernier
PROCHE DU HAVRE - MAISON 5 PIÈCES NEUVE
À 5 km de la Manche et à deux pas du Havre, nous sommes ravis de vous présenter cette maison de 5 pièces de 105 m² et de 1 612 m² de terrain à Marais-Vernier (27680). Elle propose quatre chambres, une cuisine et deux salles de bains.
Cette maison compte 2 niveaux. Elle est neuve.
Il y a des écoles de tous niveaux à moins de 10 minutes en voiture, tout comme une crèche à moins de 10 minutes à pied. Les autoroutes A131 et A13 et la nationale N182 sont accessibles à moins de 10 km. On trouve trois bibliothèques, des tennis, un bassin de natation, des commerces, des boulangeries, des supermarchés, deux poissonneries et des épiceries à proximité du bien. Le marché Rue de la République anime les environs.
Elle est à vendre pour la somme de 234 000 €.
Contactez notre agence (Juliette PETIT : 06-66-70-24-56) pour plus de renseignements sur la maison, sur les démarches à suivre ou sur les modalités de vente. Les Maisons Extraco Pont-Audemer vous accompagne à toutes les étapes de l'achat et dans tous vos projets immobiliers.
Mentions légales
Terrain proposé par un partenaire foncier selon disponibilités et autorisation de publicité au prix de 41 500 €. Hors droit d'enregistrement et frais de notaire. Terrain + Maison proposés au prix de 234 000 € (Hors branchements et raccordements, papiers peints, peintures, revêtement de sol dans les chambres. Tarif modifiable sans préavis). Etiquette énergie : A. Différents modèles disponibles pour ce terrain. Assurances et garanties du constructeur (RC professionnelle, décennale, dommage ouvrage, garantie de remboursement de l'acompte, livraison à prix et délai convenu) : https://www.lesmaisonsextraco.fr/informations-legales/.Agence Maisons Extraco de Pont-Audemer (27500)
- Téléphone :
- 02 32 41 95 72
- Adressse :
- 50 rue de la République
27500 Pont-Audemer, France
