Maison neuve à
Menneval
(27300) Référence :
CG2436803_1
Prix du projet : Maison avec Terrain
prix 187 000 €
- 4 pièces
- 2 chambres
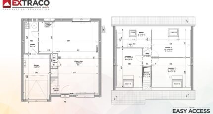
- Surface maison 81 m2
VENTE : maison de 4 pièces (81 m²) à Menneval
IDÉALEMENT SITUÉE - MAISON 4 PIÈCES NEUVE
En vente à 45 km de la Manche, votre agence Les Maisons Extraco Pont-Audemer est heureuse de vous proposer, idéalement située dans Menneval (27300), cette maison de 4 pièces de 81 m² et de 656 m² de terrain. Son intérieur est composé de deux chambres, d'une cuisine et d'une salle de bains.
Cette maison comporte 2 niveaux. Elle est neuve.
La maison se situe dans un secteur prisé. Une école primaire y est implantée. Niveau transports, on trouve deux gares (Bernay et Serquigny) à moins de 10 minutes en voiture. Il y a une boucherie-charcuterie à proximité de la maison.
Son prix de vente est de 187 000 €.
N'hésitez pas à prendre contact avec Cécilia GARCIA (06-28-09-94-28) pour toute information sur la maison ou sur les modalités de vente.
Mentions légales
Terrain proposé par un partenaire foncier selon disponibilités et autorisation de publicité au prix de 42 000 €. Hors droit d'enregistrement et frais de notaire. Terrain + Maison proposés au prix de 187 000 € (Hors branchements et raccordements, papiers peints, peintures, revêtement de sol dans les chambres. Tarif modifiable sans préavis). Etiquette énergie : A. Différents modèles disponibles pour ce terrain. Assurances et garanties du constructeur (RC professionnelle, décennale, dommage ouvrage, garantie de remboursement de l'acompte, livraison à prix et délai convenu) : https://www.lesmaisonsextraco.fr/informations-legales/.Agence Maisons Extraco de Pont-Audemer (27500)
- Téléphone :
- 02 32 41 95 72
- Adressse :
- 50 rue de la République
27500 Pont-Audemer, France
