Maison neuve à
Ménonval
(76270) Référence :
SE2379501_2
Prix du projet : Maison avec Terrain
prix 155 600 €
- 4 pièces
- 3 chambres
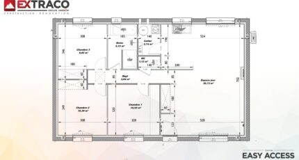
- Surface maison 80 m2
VENTE : maison T4 (80 m²) à Ménonval
EMPLACEMENT PRIVILÉGIÉ - MAISON 4 PIÈCES NEUVE
À vendre : localisée à 35 km de la Manche, bénéficiant d'un emplacement d'exception dans Ménonval (76270), nous vous présentons cette maison de 4 pièces de plain-pied de 80 m².
Conçue de plain-pied, elle compte trois chambres, une cuisine et une salle de bains. La maison est neuve.
Le terrain du bien s'étend sur 1 000 m².
La maison se trouve dans un secteur recherché. Une école élémentaire y est implantée. Les autoroutes A28 et A29 sont accessibles à moins de 2 km.
Son prix de vente est de 155 600 €.
N'hésitez pas à prendre contact avec notre agence (Slimane ELHLOU : 06-17-96-02-17) pour toute information sur la maison ou sur les modalités de vente. Donnez vie à vos projets immobiliers avec Les Maisons Extraco Dieppe.
Mentions légales
Terrain proposé par un partenaire foncier selon disponibilités et autorisation de publicité au prix de 28 000 €. Hors droit d'enregistrement et frais de notaire. Terrain + Maison proposés au prix de 127 600 € (Hors branchements et raccordements, papiers peints, peintures, revêtement de sol dans les chambres. Tarif modifiable sans préavis). Etiquette énergie : A. Différents modèles disponibles pour ce terrain. Assurances et garanties du constructeur (RC professionnelle, décennale, dommage ouvrage, garantie de remboursement de l'acompte, livraison à prix et délai convenu) : https://www.lesmaisonsextraco.fr/informations-legales/.Agence Maisons Extraco de Dieppe (76200)
- Téléphone :
- 02 35 06 07 50
- Adressse :
- 78 rue de la Barre
76200 Dieppe, France
