Maison neuve à
Ménonval
(76270) Référence :
SE2418972_3
Prix du projet : Maison avec Terrain
prix 243 250 €
- 4 pièces
- 3 chambres
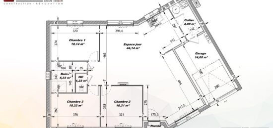
- Surface maison 109 m2
VENTE d'une maison F4 (109 m²) à Ménonval
IDÉALEMENT SITUÉE - MAISON 4 PIÈCES NEUVE
À vendre : située à 35 km de la Manche, idéalement située dans Ménonval (76270), ayez le coup de coeur pour cette maison de 4 pièces de plain-pied de 109 m² et de 1 500 m² de terrain.
Elle se divise en trois chambres, une cuisine et deux salles de bains. La maison est neuve.
Cette propriété est située dans un secteur prisé. On y trouve une école élémentaire. Les autoroutes A28 et A29 sont accessibles à moins de 2 km.
Son prix de vente est de 243 250 €.
N'hésitez pas à prendre contact avec notre agence (Slimane ELHLOU : 06-17-96-02-17) pour plus de renseignements sur la maison. Les Maisons Extraco Dieppe vous accompagne dans toutes vos démarches et à toutes les étapes de votre projet.
Mentions légales
Terrain proposé par un partenaire foncier selon disponibilités et autorisation de publicité au prix de 39 000 €. Hors droit d'enregistrement et frais de notaire. Terrain + Maison proposés au prix de 243 250 € (Hors branchements et raccordements, papiers peints, peintures, revêtement de sol dans les chambres. Tarif modifiable sans préavis). Etiquette énergie : A. Différents modèles disponibles pour ce terrain. Assurances et garanties du constructeur (RC professionnelle, décennale, dommage ouvrage, garantie de remboursement de l'acompte, livraison à prix et délai convenu) : https://www.lesmaisonsextraco.fr/informations-legales/.Agence Maisons Extraco de Dieppe (76200)
- Téléphone :
- 02 35 06 07 50
- Adressse :
- 78 rue de la Barre
76200 Dieppe, France
