Maison neuve à
Miserey
(27930) Référence :
OS2388237_2
Prix du projet : Maison avec Terrain
prix 226 400 €
- 5 pièces
- 4 chambres
- Surface maison 100 m2
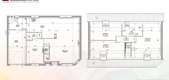
VENTE : maison F5 (100 m²) à Miserey
IDÉALEMENT SITUÉE - MAISON 5 PIÈCES NEUVE
À 8 km d'Évreux, à vendre idéalement située dans Miserey (27930), découvrez cette maison de 5 pièces de 100 m².
Cette maison compte 2 niveaux. Son intérieur se divise en quatre chambres, une cuisine et une salle de bains. Cette maison est neuve.
Le terrain de la propriété est de 500 m².
La maison se situe dans un quartier prisé. On y trouve une école primaire. Niveau transports en commun, on trouve la gare Évreux Normandie à moins de 10 minutes en voiture. Les nationales N13 et N154 sont accessibles à moins de 6 km. Il y a un commerce à proximité du logement.
Elle est à vendre pour la somme de 226 400 €.
Prenez contact avec Oumayma SONMEZ (06-68-92-00-86) pour toute question sur la maison. Les Maisons Extraco Gravigny vous accompagne dans toutes vos démarches et à toutes les étapes de votre projet.
Mentions légales
Terrain proposé par un partenaire foncier selon disponibilités et autorisation de publicité au prix de 60 000 €. Hors droit d'enregistrement et frais de notaire. Terrain + Maison proposés au prix de 166 400 € (Hors branchements et raccordements, papiers peints, peintures, revêtement de sol dans les chambres. Tarif modifiable sans préavis). Etiquette énergie : A. Différents modèles disponibles pour ce terrain. Assurances et garanties du constructeur (RC professionnelle, décennale, dommage ouvrage, garantie de remboursement de l'acompte, livraison à prix et délai convenu) : https://www.lesmaisonsextraco.fr/informations-legales/.Agence Maisons Extraco de Gravigny (27930)
- Téléphone :
- 02 32 31 20 44
- Adressse :
- 165 Avenue Aristide Briand
27930 Gravigny, France
