Maison neuve à
Montreuil-sur-Epte
(95770) Référence :
CG2436886_3
Prix du projet : Maison avec Terrain
prix 250 100 €
- 4 pièces
- 2 chambres
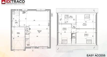
- Surface maison 81 m2
Montreuil-sur-Epte : maison de 4 pièces (81 m²) en vente
IDÉALEMENT SITUÉE - MAISON 4 PIÈCES NEUVE
À 30 km de Cergy, découvrez cette maison de 4 pièces de 81 m² et de 500 m² de terrain idéalement située dans Montreuil-sur-Epte (95770). Son intérieur est composé de deux chambres, d'une cuisine et d'une salle de bains.
C'est une maison de 2 niveaux. Elle est neuve.
Cette maison est située dans un quartier prisé. L'École Primaire de Montreuil-Sur-Sur est implantée à moins de 10 minutes à pied. On trouve un tennis et une bibliothèque à quelques minutes.
Son prix de vente est de 250 100 €.
Contactez Carole GOITA pour tout renseignement sur le bien.
Mentions légales
Terrain proposé par un partenaire foncier selon disponibilités et autorisation de publicité au prix de 76 500 €. Hors droit d'enregistrement et frais de notaire. Terrain + Maison proposés au prix de 250 100 € (Hors branchements et raccordements, papiers peints, peintures, revêtement de sol dans les chambres. Tarif modifiable sans préavis). Etiquette énergie : A. Différents modèles disponibles pour ce terrain. Assurances et garanties du constructeur (RC professionnelle, décennale, dommage ouvrage, garantie de remboursement de l'acompte, livraison à prix et délai convenu) : https://www.lesmaisonsextraco.fr/informations-legales/.Agence Maisons Extraco de Les Andelys (27700)
- Téléphone :
- 02 32 51 77 46
- Adressse :
- 51 Avenue de la République
27700 Les Andelys, France
