Maison neuve à
Moult
(14370) Référence :
MP2348740_1
Prix du projet : Maison avec Terrain
prix 224 000 €
- 4 pièces
- 3 chambres
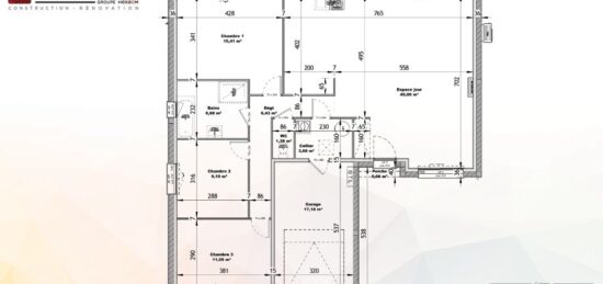
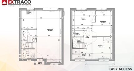
- Surface maison 88 m2
Moult : maison F4 (88 m²) en vente
QUARTIER RECHERCHÉ - MAISON 4 PIÈCES NEUVE
À vendre à 20 km de la Manche et à 17 km de Caen, notre agence Extraco construction rénovation Pont-l'Évêque est heureuse de vous proposer cette maison de 4 pièces de 88 m² nichée dans un quartier convoité de Moult (14370).
Cette maison possède 2 niveaux. Son intérieur inclut trois chambres, une cuisine et une salle de bains. La maison est neuve.
Le terrain du bien s'étend sur 463 m².
Cette maison se situe dans un secteur prisé. L'École Primaire Lucien Cingal et le Collège Jean Castel sont implantés à moins de 10 minutes à pied. Côté transports, on trouve trois gares (Moult-Argences, Frénouville-Cagny et Mézidon-Canon) à moins de 10 minutes en voiture. L'autoroute A13 est accessible à 8 km. Il y a trois tennis, une bibliothèque, un bassin de natation, une boulangerie et des commerces à proximité de la maison.
Elle est à vendre pour la somme de 224 000 €.
N'hésitez pas à prendre contact avec notre constructeur (PAIN Marion : 06-67-04-73-85) pour tout renseignement sur le bien, sur les modalités de vente ou sur les démarches à suivre. Faites de vos projets immobiliers une réalité avec Extraco construction rénovation Pont-l'Évêque.
Mentions légales
Terrain proposé par un partenaire foncier selon disponibilités et autorisation de publicité au prix de 73 300 €. Hors droit d'enregistrement et frais de notaire. Maison proposée, avec un contrat de construction de maison individuelle, dans le cadre de la loi du 19/12/1990, au prix de 150 700 € (Hors branchements et raccordements, papiers peints, peintures, revêtement de sol dans les chambres, qui sont chiffrés dans les travaux qui restent à charge du client. Tarif modifiable sans préavis). Étiquette énergie : A. Différents modèles disponibles pour ce terrain. Assurances et garanties du constructeur comprises (RC professionnelle, décennale, dommage ouvrage).Agence Maisons Extraco de Pont-l'Évêque (14130)
- Téléphone :
- 02 31 64 00 00
- Adressse :
- 20 rue Hamelin
14130 Pont-l'Évêque, France
