Maison neuve à
Moyaux
(14590) Référence :
AC2349010S48_4
Prix du projet : Maison avec Terrain
prix 199 800 €
- 4 pièces
- 2 chambres
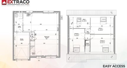
- Surface maison 81 m2
Moyaux : maison de 4 pièces (81 m²) en vente
IDÉALEMENT SITUÉE - MAISON 4 PIÈCES NEUVE
À vendre : EXTRACO Construction Rénovation Pont-l'Évêque vous présente, idéalement située dans Moyaux (14590), cette maison de 4 pièces de 81 m².
Cette maison comporte 2 niveaux. Son intérieur dispose de deux chambres, d'une cuisine et d'une salle de bains. Cette maison est neuve.
Le terrain de la propriété est de 539 m².
La maison est située dans un secteur attractif. Il y a l'École Primaire Madame René Coty à moins de 10 minutes à pied. Les autoroutes A13, A132 et A28 sont accessibles à moins de 18 km. On trouve un tennis, un commerce, une boulangerie, une épicerie et un bureau de poste dans les environs.
Elle est à vendre pour la somme de 199 800 €.
N'hésitez pas à prendre contact avec Angélique CUVILLIERS (tél : 07-63-32-12-06) pour toute question sur la maison.
EXTRACO Construction Rénovation Pont-l'Évêque est là pour vous accompagner dans tous vos projets immobiliers.
Mentions légales
Terrain proposé par un partenaire foncier selon disponibilités et autorisation de publicité au prix de 55 000 €. Hors droit d'enregistrement et frais de notaire. Maison proposée, avec un contrat de construction de maison individuelle, dans le cadre de la loi du 19/12/1990, au prix de 144 800 € (Hors branchements et raccordements, papiers peints, peintures, revêtement de sol dans les chambres, qui sont chiffrés dans les travaux qui restent à charge du client. Tarif modifiable sans préavis). Étiquette énergie : A. Différents modèles disponibles pour ce terrain. Assurances et garanties du constructeur comprises (RC professionnelle, décennale, dommage ouvrage).Agence Maisons Extraco de Pont-l'Évêque (14130)
- Téléphone :
- 02 31 64 00 00
- Adressse :
- 20 rue Hamelin
14130 Pont-l'Évêque, France
