Maison neuve à
Moyaux
(14590) Référence :
AC2349011S48_1
Prix du projet : Maison avec Terrain
prix 267 800 €
- 4 pièces
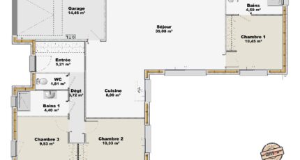
- 3 chambres
- Surface maison 94 m2
VENTE : maison de 4 pièces (94 m²) à Moyaux
IDÉALEMENT SITUÉE - MAISON 4 PIÈCES NEUVE
En vente : Notre agence EXTRACO Construction Rénovation Pont-l'Évêque est ravie de vous présenter cette maison de 4 pièces de plain-pied de 94 m² et de 841 m² de terrain, idéalement située dans Moyaux (14590).
Elle est composée de trois chambres, d'une cuisine et de deux salles de bains. Cette maison est neuve.
La maison est située dans un quartier prisé. L'École Primaire Madame René Coty est implantée à moins de 10 minutes à pied. Les autoroutes A13, A132 et A28 sont accessibles à moins de 18 km. On trouve un tennis, un commerce, une boulangerie, un bureau de poste et une épicerie dans les environs.
Son prix de vente est de 267 800 €.
Contactez notre agence (Angélique CUVILLIERS : 07-63-32-12-06) pour toute question sur la maison, sur les modalités de vente ou sur les démarches à suivre.
EXTRACO Construction Rénovation Pont-l'Évêque est là pour vous accompagner dans tous vos projets immobiliers.
Mentions légales
Terrain proposé par un partenaire foncier selon disponibilités et autorisation de publicité au prix de 65 000 €. Hors droit d'enregistrement et frais de notaire. Maison proposée, avec un contrat de construction de maison individuelle, dans le cadre de la loi du 19/12/1990, au prix de 202 800 € (Hors branchements et raccordements, papiers peints, peintures, revêtement de sol dans les chambres, qui sont chiffrés dans les travaux qui restent à charge du client. Tarif modifiable sans préavis). Étiquette énergie : A. Différents modèles disponibles pour ce terrain. Assurances et garanties du constructeur comprises (RC professionnelle, décennale, dommage ouvrage).Agence Maisons Extraco de Pont-l'Évêque (14130)
- Téléphone :
- 02 31 64 00 00
- Adressse :
- 20 rue Hamelin
14130 Pont-l'Évêque, France
