Maison neuve à
Moyaux
(14590) Référence :
AC2349011S48_3
Prix du projet : Maison avec Terrain
prix 228 700 €
- 4 pièces
- 3 chambres
- Surface maison 98 m2
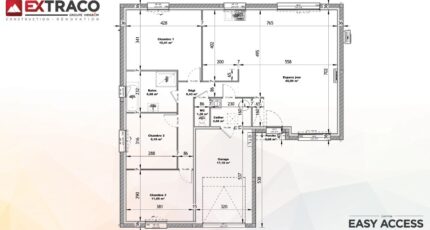
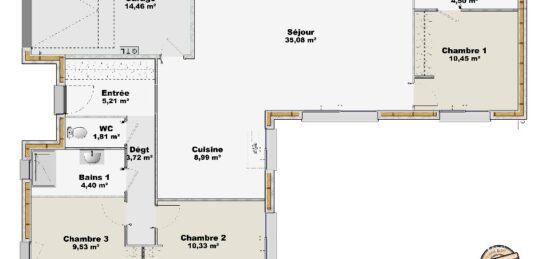
VENTE : maison F4 (98 m²) à Moyaux
IDÉALEMENT SITUÉE - MAISON 4 PIÈCES NEUVE
En vente : idéalement située dans Moyaux (14590), votre agence EXTRACO Construction Rénovation Pont-l'Évêque est ravie de vous proposer cette maison de 4 pièces de plain-pied de 98 m². Elle propose trois chambres, une cuisine et une salle de bains.
Le terrain de la maison est de 841 m².
La maison est neuve.
Cette maison se trouve dans un secteur convoité. L'École Primaire Madame René Coty est implantée à moins de 10 minutes à pied. Les autoroutes A13, A132 et A28 sont accessibles à moins de 18 km. On trouve un tennis, un commerce, une boulangerie, une épicerie et un bureau de poste à proximité du logement.
Son prix de vente est de 228 700 €.
Contactez Angélique CUVILLIERS (tél : 07-63-32-12-06) pour obtenir de plus amples informations sur le bien.
EXTRACO Construction Rénovation Pont-l'Évêque vous accompagne dans toutes vos démarches et à toutes les étapes de l'achat.
Mentions légales
Terrain proposé par un partenaire foncier selon disponibilités et autorisation de publicité au prix de 65 000 €. Hors droit d'enregistrement et frais de notaire. Maison proposée, avec un contrat de construction de maison individuelle, dans le cadre de la loi du 19/12/1990, au prix de 163 700 € (Hors branchements et raccordements, papiers peints, peintures, revêtement de sol dans les chambres, qui sont chiffrés dans les travaux qui restent à charge du client. Tarif modifiable sans préavis). Étiquette énergie : A. Différents modèles disponibles pour ce terrain. Assurances et garanties du constructeur comprises (RC professionnelle, décennale, dommage ouvrage).Agence Maisons Extraco de Pont-l'Évêque (14130)
- Téléphone :
- 02 31 64 00 00
- Adressse :
- 20 rue Hamelin
14130 Pont-l'Évêque, France
