Maison neuve à
Moyaux
(14590) Référence :
AC2349011S48_4
Prix du projet : Maison avec Terrain
prix 217 500 €
- 5 pièces
- 4 chambres
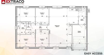
- Surface maison 92 m2
Maison T5 (92 m²) en vente à Moyaux
IDÉALEMENT SITUÉE - MAISON 5 PIÈCES NEUVE
Idéalement située dans Moyaux (14590), nous vous proposons cette maison de 5 pièces de plain-pied de 92 m². Conçue de plain-pied, elle dispose de quatre chambres, d'une cuisine et d'une salle de bains.
Le terrain de la propriété est de 841 m².
Cette maison est neuve.
La maison se situe dans un secteur convoité. L'École Primaire Madame René Coty se trouve à moins de 10 minutes à pied. Les autoroutes A13, A132 et A28 sont accessibles à moins de 18 km. Il y a un tennis, un commerce, une boulangerie, un bureau de poste et une épicerie dans les environs.
Son prix de vente est de 217 500 €.
Contactez Angélique CUVILLIERS (07-63-32-12-06) pour toute information sur la propriété ou sur les démarches à suivre.
EXTRACO Construction Rénovation Pont-l'Évêque vous accompagne à toutes les étapes de l'achat et dans tous vos projets immobiliers.
Mentions légales
Terrain proposé par un partenaire foncier selon disponibilités et autorisation de publicité au prix de 65 000 €. Hors droit d'enregistrement et frais de notaire. Maison proposée, avec un contrat de construction de maison individuelle, dans le cadre de la loi du 19/12/1990, au prix de 152 500 € (Hors branchements et raccordements, papiers peints, peintures, revêtement de sol dans les chambres, qui sont chiffrés dans les travaux qui restent à charge du client. Tarif modifiable sans préavis). Étiquette énergie : A. Différents modèles disponibles pour ce terrain. Assurances et garanties du constructeur comprises (RC professionnelle, décennale, dommage ouvrage).Agence Maisons Extraco de Pont-l'Évêque (14130)
- Téléphone :
- 02 31 64 00 00
- Adressse :
- 20 rue Hamelin
14130 Pont-l'Évêque, France
