Maison neuve à
Moyaux
(14590) Référence :
AC2373761S52_4
Prix du projet : Maison avec Terrain
prix 199 800 €
- 4 pièces
- 2 chambres
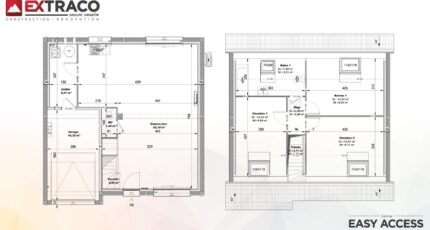
- Surface maison 81 m2
VENTE : maison F4 (81 m²) à Moyaux
EMPLACEMENT PRIVILÉGIÉ - MAISON 4 PIÈCES NEUVE
À vendre : nous sommes heureux de vous présenter cette maison de 4 pièces de 81 m² et de 539 m² de terrain bénéficiant d'un emplacement privilégié dans Moyaux (14590).
Il s'agit d'une maison de 2 niveaux. Son intérieur offre deux chambres, une cuisine et une salle de bains. Cette maison est neuve.
La propriété se situe dans un quartier recherché. L'École Primaire Madame René Coty est implantée à moins de 10 minutes à pied. Les autoroutes A13, A132 et A28 sont accessibles à moins de 18 km. On trouve un tennis, un commerce, une boulangerie, une épicerie et un bureau de poste à quelques minutes.
Son prix de vente est de 199 800 €.
N'hésitez pas à prendre contact avec Angélique CUVILLIERS (tél : 07-63-32-12-06) pour toute question sur la maison, sur les démarches à suivre ou sur les modalités de vente.
EXTRACO Construction Rénovation Pont-l'Évêque est là pour vous accompagner dans tous vos projets immobiliers.
Mentions légales
Terrain proposé par un partenaire foncier selon disponibilités et autorisation de publicité au prix de 55 000 €. Hors droit d'enregistrement et frais de notaire. Terrain + Maison proposés au prix de 144 800 € (Hors branchements et raccordements, papiers peints, peintures, revêtement de sol dans les chambres. Tarif modifiable sans préavis). Etiquette énergie : A. Différents modèles disponibles pour ce terrain. Assurances et garanties du constructeur (RC professionnelle, décennale, dommage ouvrage, garantie de remboursement de l'acompte, livraison à prix et délai convenu) : https://www.lesmaisonsextraco.fr/informations-legales/.Agence Maisons Extraco de Pont-l'Évêque (14130)
- Téléphone :
- 02 31 64 00 00
- Adressse :
- 20 rue Hamelin
14130 Pont-l'Évêque, France
