Maison neuve à
Moyaux
(14590) Référence :
MP2419626_1
Prix du projet : Maison avec Terrain
prix 200 000 €
- 4 pièces
- 2 chambres
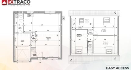
- Surface maison 81 m2
VENTE d'une maison T4 (81 m²) à Moyaux
CENTRE-VILLE - MAISON 4 PIÈCES NEUVE
En vente : située à 27 km de la Manche, nous vous présentons, à Moyaux (14590), en centre-ville, cette maison de 4 pièces de 81 m². Son intérieur comporte deux chambres, une cuisine et une salle de bains.
Le terrain de cette maison s'étend sur 461 m².
Cette maison possède 2 niveaux. Elle est neuve.
L'École Primaire Madame René Coty se trouve à moins de 10 minutes à pied. Les autoroutes A13, A132 et A28 sont accessibles à moins de 18 km. Il y a un tennis, un commerce, une boulangerie, un bureau de poste et une épicerie à quelques minutes à peine.
Elle est à vendre pour la somme de 200 000 €.
N'hésitez pas à prendre contact avec Marion PAIN (tél : 06-67-04-73-85) pour obtenir de plus amples informations sur la maison ou sur les démarches à suivre.
Mentions légales
Terrain proposé par un partenaire foncier selon disponibilités et autorisation de publicité au prix de 50 000 €. Hors droit d'enregistrement et frais de notaire. Terrain + Maison proposés au prix de 200 000 € (Hors branchements et raccordements, papiers peints, peintures, revêtement de sol dans les chambres. Tarif modifiable sans préavis). Etiquette énergie : A. Différents modèles disponibles pour ce terrain. Assurances et garanties du constructeur (RC professionnelle, décennale, dommage ouvrage, garantie de remboursement de l'acompte, livraison à prix et délai convenu) : https://www.lesmaisonsextraco.fr/informations-legales/.Agence Maisons Extraco de Pont-l'Évêque (14130)
- Téléphone :
- 02 31 64 00 00
- Adressse :
- 20 rue Hamelin
14130 Pont-l'Évêque, France
