Maison neuve à
Moyaux
(14590) Référence :
MP2433765_1
Prix du projet : Maison avec Terrain
prix 205 000 €
- 4 pièces
- 3 chambres
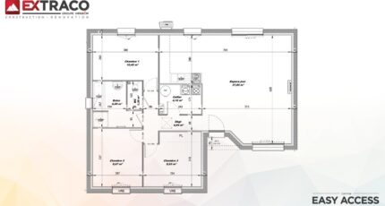
- Surface maison 84 m2
Maison de 4 pièces (84 m²) à vendre à Moyaux
CENTRE-VILLE - MAISON 4 PIÈCES NEUVE
À 27 km de la Manche, votre agence Extraco construction rénovation Pont-l'Évêque est heureuse de vous présenter en vente, en centre-ville de Moyaux (14590), cette maison de 4 pièces de plain-pied de 84 m² et de 50 000 m² de terrain.
Elle se divise en trois chambres, une cuisine et une salle de bains. Cette maison est neuve.
L'École Primaire Madame René Coty est implantée à moins de 10 minutes à pied. Il y a un tennis, un commerce, une boulangerie, un bureau de poste et une épicerie dans les environs.
Elle est proposée à l'achat pour 205 000 €.
Contactez notre constructeur (PAIN Marion : 06-67-04-73-85) pour tout renseignement sur la maison ou sur les démarches à suivre.
Mentions légales
Terrain proposé par un partenaire foncier selon disponibilités et autorisation de publicité au prix de 50 000 €. Hors droit d'enregistrement et frais de notaire. Terrain + Maison proposés au prix de 205 000 € (Hors branchements et raccordements, papiers peints, peintures, revêtement de sol dans les chambres. Tarif modifiable sans préavis). Etiquette énergie : A. Différents modèles disponibles pour ce terrain. Assurances et garanties du constructeur (RC professionnelle, décennale, dommage ouvrage, garantie de remboursement de l'acompte, livraison à prix et délai convenu) : https://www.lesmaisonsextraco.fr/informations-legales/.Agence Maisons Extraco de Pont-l'Évêque (14130)
- Téléphone :
- 02 31 64 00 00
- Adressse :
- 20 rue Hamelin
14130 Pont-l'Évêque, France
