Maison neuve à
Nassandres
(27550) Référence :
JP2418475_1
Prix du projet : Maison avec Terrain
prix 176 000 €
- 3 pièces
- 2 chambres
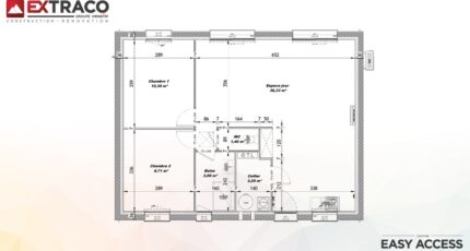
- Surface maison 65 m2
Maison F3 (65 m²) à vendre à Nassandres
MAISON 3 PIÈCES NEUVE
En vente : située à 48 km de la Manche, à Nassandres (27550), Les Maisons Extraco Pont-Audemer vous présente cette maison de 3 pièces de plain-pied de 65 m² et de 1 300 m² de terrain.
Elle inclut deux chambres, une cuisine et une salle de bains. Cette maison est neuve.
L'École Primaire Yann Arthus-Bertrand est implantée à moins de 10 minutes à pied. Niveau transports en commun, il y a les gares Serquigny, Beaumont-le-Roger et Brionne à moins de 10 minutes en voiture. On trouve un accès à l'autoroute A28 à 12 km. On trouve un tennis, un commerce et une épicerie à proximité.
Son prix de vente est de 176 000 €.
N'hésitez pas à prendre contact avec notre agence (Juliette PETIT : 06-66-70-24-56) pour plus d'informations sur la maison, sur les modalités de vente ou sur les démarches à suivre. Les Maisons Extraco Pont-Audemer est là pour vous accompagner à toutes les étapes de l'achat.
Mentions légales
Terrain proposé par un partenaire foncier selon disponibilités et autorisation de publicité au prix de 45 000 €. Hors droit d'enregistrement et frais de notaire. Terrain + Maison proposés au prix de 176 000 € (Hors branchements et raccordements, papiers peints, peintures, revêtement de sol dans les chambres. Tarif modifiable sans préavis). Etiquette énergie : A. Différents modèles disponibles pour ce terrain. Assurances et garanties du constructeur (RC professionnelle, décennale, dommage ouvrage, garantie de remboursement de l'acompte, livraison à prix et délai convenu) : https://www.lesmaisonsextraco.fr/informations-legales/.Agence Maisons Extraco de Pont-Audemer (27500)
- Téléphone :
- 02 32 41 95 72
- Adressse :
- 50 rue de la République
27500 Pont-Audemer, France
