Maison neuve à
Neauphle-le-Château
(78640) Référence :
MK2415068_4
Prix du projet : Maison avec Terrain
prix 963 900 €
- 8 pièces
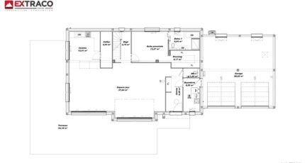
- 4 chambres
- Surface maison 230 m2
Neauphle-le-Château : maison T8 (230 m²) en vente
IDÉALEMENT SITUÉE - MAISON 8 PIÈCES NEUVE
En vente : à côté du Transilien N (gare de Plaisir-Grignon, 25 min de Paris), notre agence Les Maisons Extraco Chambourcy est heureuse de vous proposer cette maison de 8 pièces de 230 m² et de 1 086 m² de terrain idéalement située dans Neauphle-le-Château (78640). Elle propose quatre chambres, une cuisine et trois salles de bains.
Cette maison comporte 2 niveaux. Elle est neuve.
La maison se trouve dans un quartier attractif. Il y a l'École Élémentaire Emile Serre et l'École Maternelle les Petites Friches à moins de 10 minutes à pied. Niveau transports, on trouve 11 gares à moins de 10 minutes en voiture. Il y a une bibliothèque, un tennis, une boulangerie, quatre commerces, une boucherie-charcuterie, un bureau de poste et une épicerie à quelques minutes de la maison.
Elle est à vendre pour la somme de 963 900 €.
Contactez notre constructeur (KUD Morgane : 06-28-09-98-57) pour plus d'informations sur la maison, sur les modalités de vente ou sur les démarches à suivre. Concrétisez vos projets immobiliers avec Les Maisons Extraco Chambourcy.
Mentions légales
Terrain proposé par un partenaire foncier selon disponibilités et autorisation de publicité au prix de 520 000 €. Hors droit d'enregistrement et frais de notaire. Terrain + Maison proposés au prix de 963 900 € (Hors branchements et raccordements, papiers peints, peintures, revêtement de sol dans les chambres. Tarif modifiable sans préavis). Etiquette énergie : A. Différents modèles disponibles pour ce terrain. Assurances et garanties du constructeur (RC professionnelle, décennale, dommage ouvrage, garantie de remboursement de l'acompte, livraison à prix et délai convenu) : https://www.lesmaisonsextraco.fr/informations-legales/.Agence Maisons Extraco de Chambourcy (78240)
- Téléphone :
- 01 30 65 11 55
- Adressse :
- Boulevard de la Renaissance
78240 Chambourcy, France
