Maison neuve à
Orgeval
(78630) Référence :
MK2346999-0_3
Prix du projet : Maison avec Terrain
prix 944 600 €
- 8 pièces
- 4 chambres
- Surface maison 144 m2
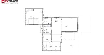
VENTE : maison de 8 pièces (144 m²) à Orgeval
IDÉALEMENT SITUÉE - MAISON 8 PIÈCES NEUVE
À vendre : au pied du Transilien J (gare de Villennes-sur-Seine, 20 min de Paris), Les Maisons Extraco Chambourcy vous présente cette maison de 8 pièces de 144 m² et de 1 021 m² de terrain idéalement située dans Orgeval (78630).
Cette maison possède 2 niveaux. Elle est composée de quatre chambres, d'une cuisine et de deux salles de bains. La maison est neuve.
Cette propriété se trouve dans un quartier recherché. Il y a l'École Élémentaire Privée Sainte Jeanne d'Arc et l'École Élémentaire Louis Pasteur à moins de 10 minutes à pied. Niveau transports en commun, on trouve la ligne de RER A (Poissy) ainsi que 24 gares à moins de 10 minutes en voiture. On trouve une bibliothèque, des commerces, deux boulangeries, deux supermarchés, un bureau de poste et une boucherie-charcuterie à quelques minutes de la maison.
Elle est proposée à l'achat pour 944 600 €.
Contactez Morgane KUD (06-28-09-98-57) pour toute question sur la maison.
Mentions légales
Terrain proposé par un partenaire foncier selon disponibilités et autorisation de publicité au prix de 650 000 €. Hors droit d'enregistrement et frais de notaire. Maison proposée, avec un contrat de construction de maison individuelle, dans le cadre de la loi du 19/12/1990, au prix de 294 600 € (Hors branchements et raccordements, papiers peints, peintures, revêtement de sol dans les chambres, qui sont chiffrés dans les travaux qui restent à charge du client. Tarif modifiable sans préavis). Étiquette énergie : A. Différents modèles disponibles pour ce terrain. Assurances et garanties du constructeur comprises (RC professionnelle, décennale, dommage ouvrage).Agence Maisons Extraco de Chambourcy (78240)
- Téléphone :
- 01 30 65 11 55
- Adressse :
- Boulevard de la Renaissance
78240 Chambourcy, France
